




Gastronomie/Hotel zum Kauf210000 €177,9 m² Gastrofläche • 453 m² Grundstück
210000 €
177,9 m² Gastrofläche • 453 m² Grundstück
Vermietetes Restaurant mit Gastgarten + 3 Apartments, inkl. 4 TG-Stellplätze
Merkmale
- vermietet
- 453 m² Grundstück
- Personenaufzug
- Keller
- 4 Stellplätze: 4 Tiefgaragenstellplätze
- Terrasse
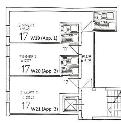
Grundrisse
Grundrisse
1 / 3
Realisiere Dein Projekt
Bausubstanz und Energie
Energieausweis
Endenergieverbrauch (Wärme)
- Baujahr1994
- HeizungsartZentralheizung
- EnergieträgerGas
Preisdetails
Kaufpreis
210000 €
Provision für Käufer
3,57 %, mind. 2.975 EUR, inkl. 19 % MwSt.
Die Provision beträgt 3,57 % des Kaufpreises inkl. 19 % MwSt. Weitere Informationen siehe Provisionshinweis.
Die Provision beträgt 3,57 % des Kaufpreises inkl. 19 % MwSt. Weitere Informationen siehe Provisionshinweis.
Weitere Preisinformationen
4 Tiefgaragenstellplätze
Geschätzte Gesamtkosten
217.497 €1
Kaufpreis
210.000 €
Kaufnebenkosten
7.497 €
2Provision für Käufer (3,57%)
7.497 €
1Der angezeigte Wert ist eine automatisch berechnete Schätzung von immowelt.
2Bei den Angaben handelt es sich um ortsübliche Werte. Individuelle Kosten können abweichen.
Lage

Körnerstraße 2, Stadtmitte, Plauen (08523)
Weitere Informationen
Weitere Services
Lust auf eine Besichtigung?
Eine Frage zur Immobilie?
Über den Anbieter
Jahnstr. 17, 08058 Zwickau
6 Jahre Partnerschaft
Herr Wolfgang KühnDein Kontakt
Online-ID: 2m4qg5f
Referenznummer: PLKö2Gastst

Immobilienbüro Kühn GmbH Co. KG, Komplimentär: Immobilienbüero Kühn Verwaltungs GmbH
Bewertung: 4,6 von 5 Sternen
Wie zufrieden bist du mit dieser Seite (nicht mit der Immobilie selbst)?




