
Crozilla.com
Biliskov real estate
+38 ···
Nr. anzeigenPreise & Kosten
Provision für Käufer
Bitte beachte, das Angebot kann bei Vertragsabschluss die Zahlung einer Provision beinhalten. Weitere Informationen erhältst Du vom Anbieter.
Das Haus
Geschosse
2 Geschosse
Baujahr
1968
Details
Objektbeschreibung
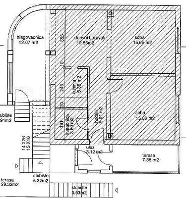
www.biliskov.com ID: 14706Donja Dubrava, TrnavaHaus mit drei Wohnungen, Gesamtfläche 327 m, mit einem Hof von 84 m, Baujahr 1968.Das Haus besteht aus 3 Wohnungen wie folgt:
Erdgeschoss: Dreizimmerwohnung mit einer Gesamtfläche von 113 m
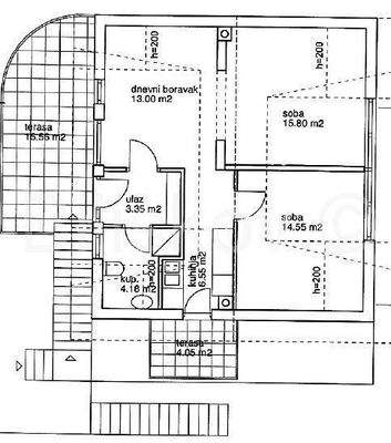
Erster Stock: Dreizimmerwohnung mit einer Fläche von 90 m, mit einer nicht...
Weitere Informationen
Stichworte
Anzahl der Badezimmer: 3, 1 Etagen
Anbieter der Immobilie
Crozilla.com
Nova cesta 60, 10000 ZAGREB
Online-ID: 2m4vs5q
Referenznummer: 18607338_1
Finde Angebote wie dieses
Hier geht es zu unserem Impressum, den Allgemeinen Geschäftsbedingungen, den Hinweisen zum Datenschutz und nutzungsbasierter Online-Werbung.