
HausHirsch GmbH
Frau Dina Diehl
+97 ···
Nr. anzeigenPreise & Kosten
Provision für Käufer
0%
Paid by the developer
Abschreibung/Anlage
Denkmalschutz-Afa
Lage
Die exklusive Immobilie auf Dubai Island in Dubai bietet nicht nur eine luxuriöse Ausstattung, sondern auch eine erstklassige Lage mit zahlreichen Highlights aus der Nachbarschaft. In unmittelbarer Nähe finden Sie alles für Ihren täglichen Bedarf, darunter Supermärkte, Ärzte und Apotheken.
Für Familien mit Kindern...
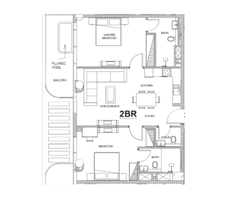
Die Wohnung
Wohnanlage
Energie & Heizung
Warum sehe ich diese Anzeige? – Du siehst diese Anzeige basierend auf Ihrer Navigation auf unserer Website und den Suchkriterien, die du verwendet hast.
Weitere Energiedaten
Heizungsart
offener Kamin
Details
Objektbeschreibung
Willkommen in Ihrem Traumziel - dem Island Beach Living Paradies! Hier erwartet Sie eine exklusive 2-Zimmer-Wohnung mit einem eigenen Pool auf dem Balkon. Diese traumhafte Immobilie ist ideal für Familien, die nach dem perfekten Ort für entspannte Ferien suchen, sowie für Investoren, die sich nach einer lukrativen...
Ausstattung
Herzlich Willkommen in der Villa Del Brunello auf den Dubai Islands! Beim Betreten dieser exquisiten 2-Zimmer-Wohnung erwartet Sie Luxus pur. Die Wohnung verfügt über einen eigenen Pool auf dem Balkon, wo Sie sich an heißen Tagen erfrischen und die atemberaubende Aussicht genießen können.
Die Anlage bietet zahlreiche...
Weitere Informationen
Stichworte
Nutzfläche: 93,00 m², Anzahl der Schlafzimmer: 2, Anzahl der Badezimmer: 2, Anzahl Balkone: 1, Balkon-Terrassen-Fläche: 40,44 m², Bundesland: Dubai
Anbieter der Immobilie
Online-ID: 2m4wf52
Referenznummer: Villa Del Brunello 2BHK APT - HA2526787
Finde Angebote wie dieses
Hier geht es zu unserem Impressum, den Allgemeinen Geschäftsbedingungen, den Hinweisen zum Datenschutz und nutzungsbasierter Online-Werbung.