Schwabenhaus Nürnberg - Horst Simon Handelsvertretung für die Schwabenhaus GmbH

Horst Simon

Kontaktiere den Anbieter schriftlich, es ist keine Telefonnummer hinterlegt.

Familientraum - Glücklich leben im Eigenheim

€ 570.000
Kaufpreis
135 m²
Wohnfläche ca.
5
Zimmer
380 m²
Grundstücksfl. ca.

Der Anbieter dieses Objekts hat gegenüber der AVIV Germany GmbH als Betreiber dieses Online-Marktplatzes erklärt, nicht als Unternehmer im Sinne des § 1 KSchG zu handeln. Die im Verbraucherschutzrecht der Union verankerten Verbraucherrechte (insbesondere Informationspflichten und Rücktritts- bzw. Widerrufsrechte) finden auf den Vertrag zwischen dem Anbieter des Objekts und Ihnen (dem Interessenten) keine Anwendung.

Provisionsfrei
Gewerblicher Anbieter

Der Anbieter dieses Objekts hat gegenüber der AVIV Germany GmbH als Betreiber dieses Online-Marktplatzes erklärt, als Unternehmer im Sinne des § 1 KSchG zu handeln.

AdresseStraße nicht freigegeben
90768 Fürth 
(Atzenhof)
Auf Karte ansehen

Preise & Kosten

Kaufpreis € 570.000

Provision für Käufer

provisionsfrei

Lage

Egersdorf 2

Das Haus

Kategorie

Doppelhaushälfte

  • Zustand: Neubau, projektiert
  • Gäste-WC

Energie & Heizung

Weitere Energiedaten

Heizungsart

Fußbodenheizung

Details

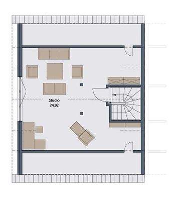
Objektbeschreibung

Herzlich willkommen in Ihrer harmonischen Oase! Diese Immobilie wurde sorgfältig gestaltet, um ein Gefühl von Ruhe und Ausgeglichenheit zu vermitteln. Jedes Detail strahlt zeitlose Eleganz aus und schafft eine wohltuende Atmosphäre für Ihren Alltag.

Ausstattung

.Architektonische Präzision: Die Immobilie besticht durch klare Linien und eine durchdachte Raumaufteilung, die höchsten Ansprüchen an Eleganz und Funktionalität gerecht wird.
.Hochwertige Materialien: Die Verwendung erstklassiger Materialien spiegelt das Streben nach Qualität und Langlebigkeit wider.
.Effiziente...

Mehr anzeigen

Weitere Informationen

Sonstiges
Das Haus ist projektiert inkl. Grundstück. Das Grundstück wird in Kommission angeboten bzw. direkt von Dritten verkauft. Daher kann der o.g. Preis aufgrund aktueller Marktsituationen schwanken.

Die Bauabwicklung kann kurzfristig nach Grundstückserwerb begonnen werden. Bilder zeigen möglicherweise...

Mehr anzeigen

Anbieter der Immobilie

Partner
user

Horst Simon

Dein Ansprechpartner

Kontaktiere den Anbieter schriftlich, es ist keine Telefonnummer hinterlegt.

Anbieter-Website Anbieter-Profil Anbieter-Impressum

Online-ID: 2m4wm5u

Referenznummer: SH-362234-Fürth

Finde Angebote wie dieses

imageimageimage

Hier geht es zu unserem Impressum, den Allgemeinen Geschäftsbedingungen, den Hinweisen zum Datenschutz und nutzungsbasierter Online-Werbung.