
Crozilla.com
Angelus Real Estate
+38 ···
Nr. anzeigenPreise & Kosten
Provision für Käufer
Bitte beachte, das Angebot kann bei Vertragsabschluss die Zahlung einer Provision beinhalten. Weitere Informationen erhältst Du vom Anbieter.
Die Wohnung
Wohnungslage
2. Geschoss
Details
Objektbeschreibung
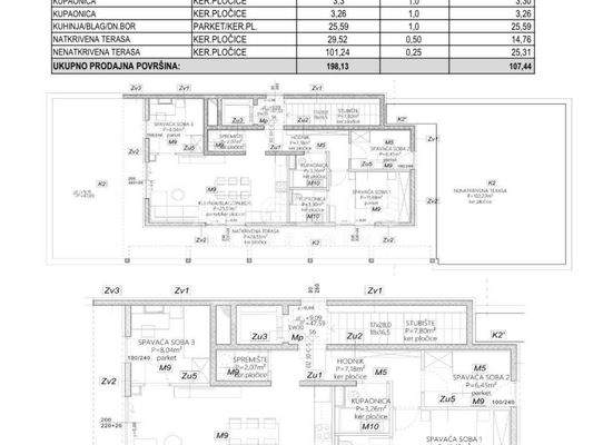
Die Immobilienagentur Angelus Real Estate bietet Ihnen eine 107,44 m große Dreizimmerwohnung in einem Neubau in Split, Stadtteil Mejasi, zum Verkauf an.
LAGE
Die Wohnung befindet sich in sehr ruhiger Lage im Südosten von Split und ist hervorragend an das Stadtbild angebunden. In diesem außergewöhnlich urbanen...
Weitere Informationen
Stichworte
Anzahl der Schlafzimmer: 3, Anzahl der Badezimmer: 2, 1 Etagen
Anbieter der Immobilie
Crozilla.com
Nova cesta 60, 10000 ZAGREB
Online-ID: 2m4xl5d
Referenznummer: 18648489_0
Finde Angebote wie dieses
Hier geht es zu unserem Impressum, den Allgemeinen Geschäftsbedingungen, den Hinweisen zum Datenschutz und nutzungsbasierter Online-Werbung.