
BIRNBAUM Immobilien GmbH
004 ···
Nr. anzeigenPreise & Kosten
Kaution
1.287,00
Warum sehe ich diese Anzeige? – Du siehst diese Anzeige basierend auf Ihrer Navigation auf unserer Website und den Suchkriterien, die du verwendet hast.
Lage
Das Wohnhaus befindet sich in der Gützkower Landstraße. In unmittelbarer Nähe befinden sich eine Busanbindung sowie verschiedene Einkaufsmöglichkeiten, wie ein Frischemarkt "Lidl", ein Baumarkt "toom", ein Getränkemarkt, ein China-Restaurant und eine Tankstelle. Das Stadtzentrum ist in wenigen Minuten mit dem Fahrrad...
Die Wohnung
Wohnungslage
4. Geschoss
Bezug
01.01.2026
Wohnanlage
Energie & Heizung
Warum sehe ich diese Anzeige? – Du siehst diese Anzeige basierend auf Ihrer Navigation auf unserer Website und den Suchkriterien, die du verwendet hast.
Energieausweistyp
Verbrauchsausweis
Gebäudetyp
Wohngebäude
Baujahr laut Energieausweis
2006
Wesentliche Energieträger
GAS
Gültigkeit
bis 16.01.2035
Effizienzklasse
B
Endenergieverbrauch
60,00 kWh/(m²·a)
Weitere Energiedaten
Energieträger
Gas
Heizungsart
Zentralheizung
Details
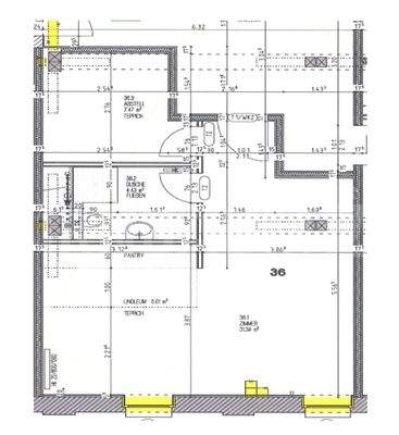
Objektbeschreibung
In einem saniertem Speicher, welcher zu einem Komplex von mehreren sanierten Gebäuden gehört, ist ein Studentenappartement zu vermieten. Der Speicher wurde im Jahr 2006 umfangreich saniert.
Die Wohnungen leben von ihrem ganz besonderem Ambiente, was durch die sichtbaren Holzfachwerkkonstruktionen zum Ausdruck kommt und sie...
Ausstattung
Die Wohnung hat folgende Ausstattung
. Bad mit Dusche
. Pantry-Küche
. Laminat und Fliesen
. Abstellraum innerhalb der Wohnung
. PKW-Stellplatz (Mietpreis in Höhe von monatlich 40,00 € in der Warmmiete enthalten)
Preisinformation
1 Stellplatz, Miete: 40,00 EUR
Weitere Informationen
Sonstiges
Wir bedanken uns für Ihr Interesse an unserem Angebot.
Nach Bekanntgabe Ihrer Postanschrift und Telefonnummer über das Kontaktformular nehmen wir zeitnah Kontakt mit Ihnen auf und stehen Ihnen für eine Besichtigung oder eine Beratung gern zur Verfügung.
Alle Angaben sind ohne Gewähr und basieren...
Anbieter der Immobilie
Online-ID: 2m4yy5g
Referenznummer: 00520_36
Finde Angebote wie dieses
Hier geht es zu unserem Impressum, den Allgemeinen Geschäftsbedingungen, den Hinweisen zum Datenschutz und nutzungsbasierter Online-Werbung.