
Evernest GmbH
Heiko Hofmann
+49 ···
Nr. anzeigenPreise & Kosten
Provision für Käufer
Provisionsfrei für den Käufer
Lage
Das Baugrundstück in der Edelsteinsiedlung liegt im westlichen Teil des Dortmunder Stadtbezirks Hörde. Die Gegend ist geprägt durch eine ruhige Wohnbebauung und eine gute Infrastruktur.
Die Anbindung an das Verkehrsnetz ist ausgezeichnet. Die Bundesstraße B54, sowie die Bundesautobahnen A1 und A45, sind in wenigen...
Das Haus
Kategorie
Doppelhaushälfte
Baujahr
2026
Energie & Heizung
Warum sehe ich diese Anzeige? – Du siehst diese Anzeige basierend auf Ihrer Navigation auf unserer Website und den Suchkriterien, die du verwendet hast.
Weitere Energiedaten
Energieträger
Elektro
Details
Objektbeschreibung
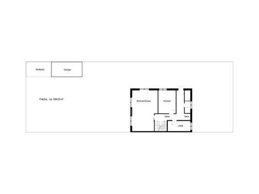
Treten Sie ein in Ihr neues, stilvolles Zuhause! Diese exklusive Neubau-Doppelhaushälfte vereint gemütliches Ambiente mit modernster Energieeffizienz. Auf großzügigen 158,70 m² Wohnfläche erwartet Sie ein durchdachtes Raumkonzept, das den höchsten Ansprüchen an modernes Wohnen gerecht wird.
Herzstück des Hauses ist der...
Ausstattung
*158,70m² Wohnfläche
*3 Schlafzimmer
*offene Küche mit großzügigem Wohn-Essbereich
*Tageslichtbadezimmer mit Dusche im EG
*Tageslichtbadezimmer mit Badewanne im OG
*KfW 55 Standard / 40 KfW gegen Aufpreis möglich
*Hauswirtschaftsraum & Abstellraum
*Fußbodenheizung
*Fertigstellung voraussichtlich...
Weitere Informationen
Energiepass
Energieausweis wird bei Besichtigung vorgelegt.
Stichworte
Parkhaus vorhanden, Anzahl der Schlafzimmer: 3, Anzahl der Badezimmer: 2, Anzahl Terrassen: 1, 2 Etagen
Anbieter der Immobilie
Online-ID: 2m4z55f
Referenznummer: L-FNNMJBN
Finde Angebote wie dieses
Hier geht es zu unserem Impressum, den Allgemeinen Geschäftsbedingungen, den Hinweisen zum Datenschutz und nutzungsbasierter Online-Werbung.