
DAHLER Hannover
Frau Solveig Klein-Franke
004 ···
Nr. anzeigenPreise & Kosten
Provision für Käufer
3,57% v. Kaufpreis (inkl. ges. MwSt.)
Lage
* Kirchrode liegt im Süd-Osten der Landeshauptstadt Hannover
* das Haus liegt ca. 5 Minuten fußläufig vom "Dorfkern" Kirchrode entfernt
* Kindergärten und Grundschule sind fußläufig gut erreichbar
* diverse Einkaufsmöglichkeiten, Bäcker, Banken, Boutiquen und Restaurants befinden sich in der Nähe
* Entfernung zur...
Das Haus
Kategorie
Einfamilienhaus
Baujahr
1957
Energie & Heizung
Warum sehe ich diese Anzeige? – Du siehst diese Anzeige basierend auf Ihrer Navigation auf unserer Website und den Suchkriterien, die du verwendet hast.
Energieausweistyp
Bedarfsausweis
Gebäudetyp
Wohngebäude
Baujahr laut Energieausweis
1957
Wesentliche Energieträger
ERDGAS_SCHWER
Gültigkeit
bis 16.09.2025
Effizienzklasse
H
Endenergiebedarf
324,20 kWh/(m²·a)
Weitere Energiedaten
Energieträger
Gas
Heizungsart
offener Kamin, Zentralheizung
Details
Objektbeschreibung
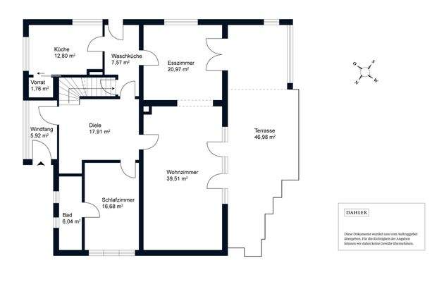
Stilvolles Einfamilienhaus mit der Architekturnote der späten 50er - ruhige, diskrete Lage auf 1.187 großen Grundstück an einer Privatstraße südlich der Ostfeldstraße!
Auf ca. 235 m² Wohnfläche und ca. 197 m² Nutzfläche befinden sich insgesamt 9 Zimmer und drei Bäder. Das Gebäude bezaubert mit dem schönen Garten, dem...
Ausstattung
* herrliches Grundstück mit Weitblick
* diskret in einer Privatstraße gelegen
* repräsentativer, großzügiger Grundriss
* Vollholz Eichenparkett in Fischgrät Verlegeart
* Kamin
* überdachter Freisitz
* Süd-West Garten
* 6 Schlafzimmer
* 3 Bäder, 1 separates WC
* Küche mit Ausgang zum Garten
*...
Preisinformation
1 Stellplatz
1 Garagenstellplatz
Weitere Informationen
Sonstiges
Haben auch Sie ein Haus oder eine Wohnung in dieser Lage zu verkaufen oder zu vermieten? Wir beraten Sie gern. Besuchen Sie uns in unserem Immobilienshop in der Wedekindstraße 4 in 30161 Hannover-List oder rufen Sie uns jetzt an unter der 0511.51 53 24 46.
Solveig Klein-Franke
Beratung - Verkauf -...
Anbieter der Immobilie
Online-ID: 2m58q5c
Referenznummer: DC-HAN2636
Finde Angebote wie dieses
Hier geht es zu unserem Impressum, den Allgemeinen Geschäftsbedingungen, den Hinweisen zum Datenschutz und nutzungsbasierter Online-Werbung.