team19 Immobilien GmbH

Herr Stefan Djukic

Neubauwohnungen in Wien 1210 - Moderne Wohnqualität in gefragter Lage zwischen SCN und Lorettowiese

€ 1.395
Gesamtmiete inkl. BK
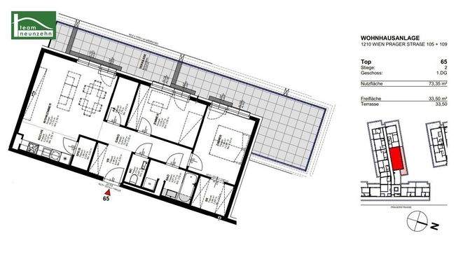
73,35 m²
Wohnfläche ca.
3
Zimmer

Der Anbieter dieses Objekts hat gegenüber der AVIV Germany GmbH als Betreiber dieses Online-Marktplatzes erklärt, nicht als Unternehmer im Sinne des § 1 KSchG zu handeln. Die im Verbraucherschutzrecht der Union verankerten Verbraucherrechte (insbesondere Informationspflichten und Rücktritts- bzw. Widerrufsrechte) finden auf den Vertrag zwischen dem Anbieter des Objekts und Ihnen (dem Interessenten) keine Anwendung.

Gewerblicher Anbieter

Der Anbieter dieses Objekts hat gegenüber der AVIV Germany GmbH als Betreiber dieses Online-Marktplatzes erklärt, als Unternehmer im Sinne des § 1 KSchG zu handeln.

AdressePrager Straße 105 + 109
1210 Wien 
(Floridsdorf)
Auf Karte ansehen

Preise & Kosten

Gesamtmiete

inkl. Betriebskosten

€ 1.395
Nettokaltmiete € 1.039,45 Betriebskosten € 228,73

Kaution

3 Bruttomonatsmieten

Provision für Mieter

Gemäß Erstauftraggeberprinzip bezahlt der Abgeber die Provision.

Lage

Nähe: Prager Straße, Anton-Bosch-Gasse, Deublergasse, FAC Platz, Lorettowiese, Aupark Jedlesee, Neue Donau, S-Bahn Jedlersdorf, Straßenbahn Linie 26 Hopfengasse

Die Wohnung

Wohnungslage

5. Geschoss

Bezug

01.04.2026

  • Bad mit Wanne
  • Terrasse
  • Einbauküche
  • Böden: Fliesenboden, Parkett
  • Ausstattung: neuwertig
  • Weitere Räume: Abstellraum

Wohnanlage

  • Baujahr: 2019
  • Zustand: Neubau
  • Personenaufzug

Energie & Heizung

Heizwärmebedarf (HWB)

B

30,75 kWh/(m²·a)

Gesamtenergieeffizienz (fGEE)

A

0,83

Weitere Energiedaten

Energieträger

Fernwärme

Details

Objektbeschreibung

Moderne Neubauwohnungen in unmittelbarer Nähe zum SCN, Lorettowiese und mit ausgezeichneter Anbindung an öffentliche Verkehrsmittel - Straßenbahnlinie 26 und S-Bahn Jedlersdorf in Gehweite!

Im Jahr 2019 wurde dieses hochwertige Wohngebäude entlang der Prager Straße errichtet. Es überzeugt durch seine ausgezeichnete...

Mehr anzeigen

Preisinformation

Nettokaltmiete: 1.039,45 EUR

Weitere Informationen

Stichworte
Tiefgarage vorhanden, West-Balkon/Terrasse, Fahrradraum, Rolladen, Nutzfläche: 106,85 m², Gesamtfläche: 106,85 m², Freifläche: 33,50 m², Anzahl der Badezimmer: 1, Anzahl der separaten WCs: 1, Anzahl Terrassen: 1, Balkon-Terrassen-Fläche: 33,50 m², Bundesland: Wien, 6 Etagen, Wohnungsnr.: 65

Anbieter der Immobilie

Partner

team19 Immobilien GmbH

im Durchschnitt  4,20  Sterne
(bei 2 Bewertungen)

Handelskai 94-96/44. Stock, 1200 BRIGITTENAU

user

Herr Stefan Djukic

Dein Ansprechpartner

Anbieter-Website Anbieter-Profil Anbieter-Impressum

Online-ID: 2m5995s

Referenznummer: OBGC20251219121539718b27c073d55

Finde Angebote wie dieses

imageimageimage

Hier geht es zu unserem Impressum, den Allgemeinen Geschäftsbedingungen, den Hinweisen zum Datenschutz und nutzungsbasierter Online-Werbung.