
ohne-makler.net - Immobilien selbst vermarkten
Privat von Barbara Woldrich
Kontaktiere den Anbieter schriftlich, es ist keine Telefonnummer hinterlegt.
Preise & Kosten
Provision für Käufer
provisionsfrei
Abschreibung/Anlage
Denkmalschutz-Afa
Lage
In einer der begehrtesten Wohnlagen des 19. Wiener Gemeindebezirks gelegen, vereint dieses exklusive Penthouse Ruhe, Privatsphäre und hervorragende Lebensqualität. Die Sollingergasse steht für eine grüne, elegante Umgebung mit erstklassiger Infrastruktur und gleichzeitig ausgezeichneter Anbindung an das Wiener...
Die Wohnung
Wohnungslage
5. Geschoss (Dachgeschoss)
Bezug
nach Absprache
Wohnanlage
Energie & Heizung
Warum sehe ich diese Anzeige? – Du siehst diese Anzeige basierend auf Ihrer Navigation auf unserer Website und den Suchkriterien, die du verwendet hast.
Heizwärmebedarf (HWB)
30,00 kWh/(m²·a)
Weitere Energiedaten
Energieträger
Gas
Heizungsart
Zentralheizung
Details
Objektbeschreibung
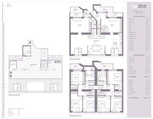
Dieses außergewöhnliche Penthouse Top 20/21 bietet luxuriöses Wohnen auf höchstem Niveau und erstreckt sich über zwei Wohnebenen mit einer beeindruckenden Wohnfläche von ca. 292,5 m². Großzügige Fensterfronten durchziehen die gesamte Wohnung und fluten die Räume mit Tageslicht, während sie gleichzeitig atemberaubende...
Ausstattung
Balkon, Terrasse, Wintergarten, Keller, Dachterrasse, Fahrstuhl, Vollbad, Duschbad, Sauna, Einbauküche, Gäste-WC, Parkett, Fliesen
Bemerkungen:
. Landhausdillen-Parkettboden, geölt
. Hochwertige Massivholztüren
. Feinstein Fliesen
. Vollklimatisiert & Fußbodenheizung
. Moderne...
Preisinformation
2 Stellplätze
1 Garagenstellplatz
2 Tiefgaragenstellplätze
Weitere Informationen
Sonstiges
Heizungsart: Zentralheizung
Energieträger: Gas
Ursprünglich als zwei eigenständige Wohneinheiten konzipiert, wurden diese vom Eigentümer zu einem großzügigen Penthouse verbunden. Die baulichen Voraussetzungen für eine spätere Trennung sind weiterhin gegeben, wodurch sich die Immobilie ideal für...
Anbieter der Immobilie
Privat von Barbara Woldrich
Dein Ansprechpartner
Kontaktiere den Anbieter schriftlich, es ist keine Telefonnummer hinterlegt.
Online-ID: 2m59n5y
Referenznummer: 418681
Finde Angebote wie dieses
Günstige Immobilienfinanzierung einfach online berechnen
Persönliches Angebot berechnenWarum sehe ich diese Werbung? – Du siehst diese Werbung basierend auf Deiner Navigation auf unserer Website und der von Dir verwendeten Suchkriterien.
Diese Werbung wird bezahlt von durchblicker
Werbung melden
Hier geht es zu unserem Impressum, den Allgemeinen Geschäftsbedingungen, den Hinweisen zum Datenschutz und nutzungsbasierter Online-Werbung.