
ohne-makler.net - Immobilien selbst vermarkten
Privat von SPS Immobilien
Kontaktiere den Anbieter schriftlich, es ist keine Telefonnummer hinterlegt.
Preise & Kosten
Kaution
3.000,00
Warum sehe ich diese Anzeige? – Du siehst diese Anzeige basierend auf Ihrer Navigation auf unserer Website und den Suchkriterien, die du verwendet hast.
Lage
Das Haus liegt direkt im Ortszentrum von Gailingen am Hochrhein, einer charmanten Gemeinde mit hervorragender Infrastruktur und hohem Freizeitwert.
Einkaufsmöglichkeiten, Arztpraxis, Apotheke, Schule, Kindergarten, Bank sowie Bushaltestellen sind bequem zu Fuß erreichbar.
Die idyllische Lage am Rhein, die Nähe zur...
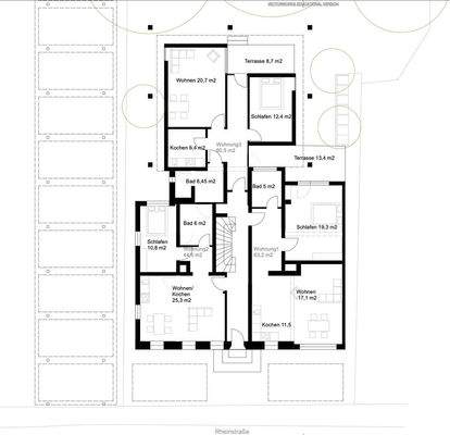
Die Wohnung
Wohnungslage
Erdgeschoss
Bezug
sofort
Wohnanlage
Energie & Heizung
Warum sehe ich diese Anzeige? – Du siehst diese Anzeige basierend auf Ihrer Navigation auf unserer Website und den Suchkriterien, die du verwendet hast.
Weitere Energiedaten
Energieträger
Solar
Heizungsart
Zentralheizung
Details
Objektbeschreibung
Die großzügige und hochwertig ausgestattete 2-Zimmer-Wohnung mit rund 70 m² Wohnfläche befindet sich im Erdgeschoss eines umfassend sanierten und modernisierten Mehrfamilienhauses in Gailingen am Hochrhein.
Die Wohnung besticht durch ihren modernen Grundriss, eine helle, freundliche Atmosphäre und den direkten Zugang zur...
Ausstattung
Terrasse, Garten, Keller, Duschbad, Einbauküche, Fliesen
Bemerkungen:
- Hochwertiger Vinylboden in Holzoptik in allen Räumen
- Fußbodenheizung (Niedertemperatur-System in allen Räumen)
- Energieeffiziente Kombination aus Solarthermie und moderner Pellet-Heizung
- Maßgefertigte Einbauküche mit...
Preisinformation
1 Stellplatz, Miete: 20,00 EUR
Nettokaltmiete: 1.080,00 EUR
Weitere Informationen
Sonstiges
Heizungsart: Zentralheizung
Energieträger: Solar
Energieausweis nicht vorhanden
Makleranfragen nicht erwünscht. Nach § 7 UWG sind unaufgeforderte Kontaktaufnahmen durch Makler ohne ausdrückliche Einwilligung des Empfängers verboten!
ohne-makler (OM) ist weder Anbieter noch Vermittler der...
Anbieter der Immobilie
ohne-makler.net - Immobilien selbst vermarkten
Humboldtstr. 25 A, 21509 Glinde
Privat von SPS Immobilien
Dein Ansprechpartner
Kontaktiere den Anbieter schriftlich, es ist keine Telefonnummer hinterlegt.
Online-ID: 2m5a55k
Referenznummer: 269570
Finde Angebote wie dieses
Hier geht es zu unserem Impressum, den Allgemeinen Geschäftsbedingungen, den Hinweisen zum Datenschutz und nutzungsbasierter Online-Werbung.