
Wohnungsswap.de
Herr Tobias Jonnarth
Kontaktiere den Anbieter schriftlich, es ist keine Telefonnummer hinterlegt.
Preise & Kosten
zzgl. Nebenkosten
Warum sehe ich diese Anzeige? – Du siehst diese Anzeige basierend auf Ihrer Navigation auf unserer Website und den Suchkriterien, die du verwendet hast.
Die Wohnung
Kategorie
Apartment
Wohnungslage
1. Geschoss
Details
Objektbeschreibung
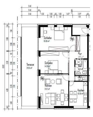
Schöne und geräumige 3-Zimmer-Wohnung in Köln, Lindenthal/Junkersdorf. Mit 88,5 m² bietet sie viel Platz zum Wohlfühlen (81.21m² Wohnung plus 29,14m² Balkon der sich über alle Zimmer erstreckt). Die freundliche Lage und die Nähe zum Stadtwald, Stadion und Sporthochschule machen sie besonders attraktiv. Die Wohnung eignet sich...
Anbieter der Immobilie
Wohnungsswap.de
Beedstraße 54, 40468 Düsseldorf
Herr Tobias Jonnarth
Dein Ansprechpartner
Kontaktiere den Anbieter schriftlich, es ist keine Telefonnummer hinterlegt.
Online-ID: 2m5aa5z
Referenznummer: 1489484
Finde Angebote wie dieses
Hier geht es zu unserem Impressum, den Allgemeinen Geschäftsbedingungen, den Hinweisen zum Datenschutz und nutzungsbasierter Online-Werbung.