
DAHLER Mainz c/o Fischtorplatz Immobilien GmbH
Herr David Demmer
004 ···
Nr. anzeigenPreise & Kosten
Provision für Käufer
3,57% inkl. der gesetzl. MwSt., bezogen auf den beurkundeten Kaufpreis inkl. MwSt.
Lage
Die idyllische Stadt Nierstein ist ein Mittelzentrum Rheinhessens. Durch ihre Lage in der Rhein-Main-Region und der Metropolregion Rhein-Neckar ist die Stadt hervorragend an das Verkehrsnetz angebunden. In nur 13 Minuten erreicht man mit der S-Bahn den Mainzer Bahnhof "Römisches Theater", der Hauptbahnhof Worms ist in 25...
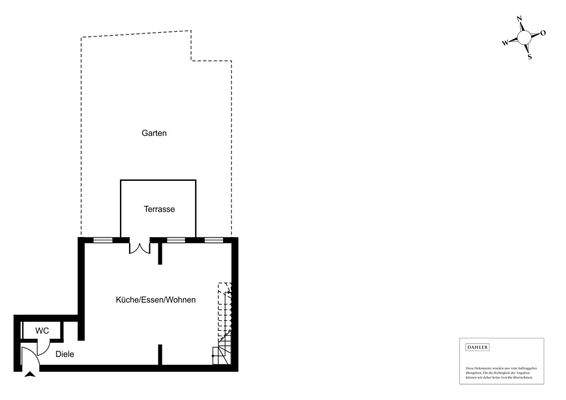
Die Wohnung
Kategorie
Maisonette
Bezug
nach Absprache
Wohnanlage
Energie & Heizung
Warum sehe ich diese Anzeige? – Du siehst diese Anzeige basierend auf Ihrer Navigation auf unserer Website und den Suchkriterien, die du verwendet hast.
Energieausweis: für diesen Gebäudetyp nicht notwendig
Weitere Energiedaten
Energieträger
Gas
Heizungsart
Zentralheizung
Details
Objektbeschreibung
Die außergewöhnliche Maisonette-Wohnung befindet sich in bester Wohnlage Niersteins, unterhalb der Villa Spiegelberg. Das im Jahr 2015/2016 kernsanierte, denkmalgeschützte Anwesen steht auf dem historischen Gelände eines ehemaligen Weinguts. Die denkmalgeschützte Wohnung besticht durch ihren hohen architektonischen Anspruch...
Ausstattung
Wie von außen bereits zu erahnen, präsentiert sich diese Wohnung im Inneren mit modernen und zugleich hochwertigen Ausstattungsmerkmalen in historischem Ambiente.
Hochwertige Fliesen und Parkett sowie moderne Holzfenster mit Sprossen im historischen Stil verleihen dem Interieur eine besondere Eleganz. Die zahlreichen...
Preisinformation
1 Stellplatz
Weitere Informationen
Stichworte
Anzahl der Schlafzimmer: 2, Anzahl der Badezimmer: 1, Anzahl der separaten WCs: 1, Anzahl Terrassen: 1, 2 Etagen, Distanz zum Kindergarten: 0.27, Distanz zur Grundschule: 0.56, Distanz zur Realschule: 0.34, Distanz zur nächsten Einkaufsmöglichkeit: 3.25, Distanz zum Gymnasium: 2.73, Distanz zum Flughafen: 36.00...
Anbieter der Immobilie
Online-ID: 2m5ad5x
Referenznummer: DC-MAI-1319
Finde Angebote wie dieses
Hier geht es zu unserem Impressum, den Allgemeinen Geschäftsbedingungen, den Hinweisen zum Datenschutz und nutzungsbasierter Online-Werbung.