

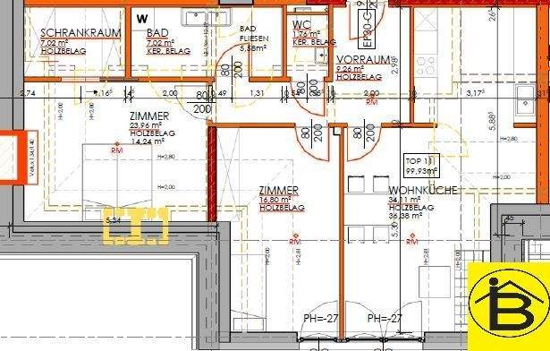
Wohnung zur Miete694 €3 Zimmer • 99,9 m² • frei ab sofort
694 €
3 Zimmer • 99,9 m² • frei ab sofort
15454 Preisreduktion! Tolle Lage!
Merkmale
- frei ab sofort
- Dachgeschoss
- Personenaufzug
Grundrisse
Grundrisse
1 / 1
Realisiere Dein Projekt
Bausubstanz und Energie
Heizwärmebedarf (HWB)
B
Gesamtenergieeffizienz (fGEE)
A
- Baujahr2019
Mietkosten
Gesamtmiete
1.060 €
Nettokaltmiete
6,94 €/m²
693,64 €
Betriebskosten
297 €
Umsatzsteuer
96,36 €
Kaution
5.000,00 Fixbetrag
Weitere Preisinformationen
Nettokaltmiete: 693,64 EUR
Lage

St. Pölten (3100)
Der Anbieter hat die genaue Adresse nicht freigegeben
Weitere Informationen
Weitere Services
Lust auf eine Besichtigung?
Eine Frage zur Immobilie?
Über den Anbieter
Wiener Str. 3-7, 3100 ST. PÖLTEN
Frau Irma BORGERDein Kontakt
Online-ID: 25GB95HQ6I36
Referenznummer: 215/15454

Oswald H. Borger GmbH Immobilienmakler und Verwalter
Bewertung: 5 von 5 Sternen
Wie zufrieden bist du mit dieser Seite (nicht mit der Immobilie selbst)?

