team19 Immobilien GmbH

Herr Benjamin Pippan

Die Wohnung zum Wohlfühlen - große und ruhige 2.Zimmer-Wohnung mit energieeffizienter Wärmepumpe und Loggia - bei U1!

€ 329.000
Kaufpreis
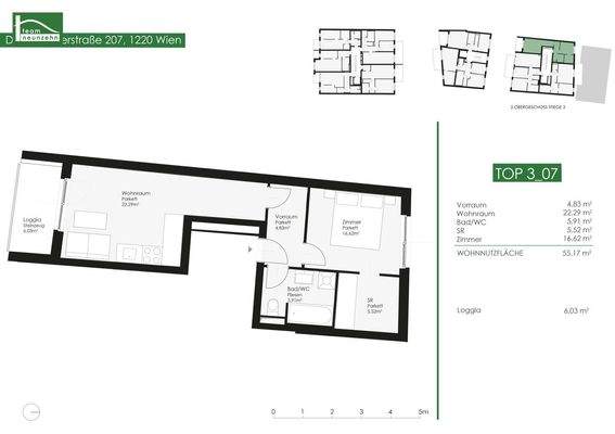
55,17 m²
Wohnfläche ca.
2
Zimmer
Finanzierung berechnen mit durchblicker

Der Anbieter dieses Objekts hat gegenüber der AVIV Germany GmbH als Betreiber dieses Online-Marktplatzes erklärt, nicht als Unternehmer im Sinne des § 1 KSchG zu handeln. Die im Verbraucherschutzrecht der Union verankerten Verbraucherrechte (insbesondere Informationspflichten und Rücktritts- bzw. Widerrufsrechte) finden auf den Vertrag zwischen dem Anbieter des Objekts und Ihnen (dem Interessenten) keine Anwendung.

Gewerblicher Anbieter

Der Anbieter dieses Objekts hat gegenüber der AVIV Germany GmbH als Betreiber dieses Online-Marktplatzes erklärt, als Unternehmer im Sinne des § 1 KSchG zu handeln.

AdresseDonaufelder Straße 207
1220 Wien 
(Donaustadt)
Auf Karte ansehen

Preise & Kosten

Kaufpreis € 329.000

Provision für Käufer

3% des Kaufpreises zzgl. 20% USt.

Lage

Kagraner Platz, U1, Wagramer Straße, Donauzentrum, Alte Donau

Die Wohnung

Wohnungslage

2. Geschoss

Bezug

ab sofort

  • Bad mit Dusche
  • Loggia
  • offene Küche
  • rollstuhlgerecht
  • Böden: Fliesenboden, Parkett
  • Zustand: Erstbezug

Wohnanlage

  • Baujahr: 2023
  • Zustand: Neubau
  • Personenaufzug

Energie & Heizung

Heizwärmebedarf (HWB)

B

43,60 kWh/(m²·a)

Gesamtenergieeffizienz (fGEE)

A

0,77

Weitere Energiedaten

Heizungsart

Fußbodenheizung, Zentralheizung

Details

Objektbeschreibung

IHR WOHNTRAUM WIRD REALITÄT - Eigengrund in Bestlage (U1 und Nähe Alte Donau) mit energieeffizienter Wärmepumpe

 

In hervorragender Lage des 22.Bezirks - in unmittelbarer Nähe zur U-Bahn-Linie U1 und somit mit einer ausgezeichneten Anbindung an die Wiener Innenstadt sowie die Alte Donau als auch dem...

Mehr anzeigen

Weitere Informationen

Stichworte
Garage vorhanden, Süd-Balkon/Terrasse, Fahrradraum, Rolladen, Nutzfläche: 61,21 m², Gesamtfläche: 61,21 m², Freifläche: 6,03 m², Anzahl der Badezimmer: 1, Anzahl der separaten WCs: 1, Anzahl Loggias: 1, Balkon-Terrassen-Fläche: 6,03 m², Bundesland: Wien, 7 Etagen, Wohnungsnr.: 7

Sonstiges/Wohnen...

Mehr anzeigen

Anbieter der Immobilie

Partner

team19 Immobilien GmbH

im Durchschnitt  4,20  Sterne
(bei 2 Bewertungen)

Handelskai 94-96/44. Stock, 1200 BRIGITTENAU

user

Herr Benjamin Pippan

Dein Ansprechpartner

Anbieter-Website Anbieter-Profil Anbieter-Impressum

Online-ID: 2m5bx5y

Referenznummer: OBGC202601080758162917a085888cd

Finde Angebote wie dieses

imageimageimage

Günstige Immobilienfinanzierung einfach online berechnen

Persönliches Angebot berechnen

Hier geht es zu unserem Impressum, den Allgemeinen Geschäftsbedingungen, den Hinweisen zum Datenschutz und nutzungsbasierter Online-Werbung.