

Sunshine Hausverwaltung e.K.
036 ···
Nr. anzeigenPreise & Kosten
nicht in Warmmiete enthalten
Kaution
2 Nettomieten
Warum sehe ich diese Anzeige? – Du siehst diese Anzeige basierend auf Ihrer Navigation auf unserer Website und den Suchkriterien, die du verwendet hast.
Lage
Das verkehrsgünstig gelegene Mehrfamilienhaus befindet sich in Eisenachs Weststadt. Praktisch ist die direkte Lage zu Schulen und Kindergärten in direkter Umgebung. Eine Bushaltestelle befindet sich genau am Objekt. Von hier aus gelangt man problemlos in die Innenstadt, aber auch zu Einkaufsmärkten oder in die nähere Umgebung...
Die Wohnung
Wohnungslage
2. Geschoss
Bezug
01.01.2026
Wohnanlage
Energie & Heizung
Warum sehe ich diese Anzeige? – Du siehst diese Anzeige basierend auf Ihrer Navigation auf unserer Website und den Suchkriterien, die du verwendet hast.
Energieausweistyp
Verbrauchsausweis
Gebäudetyp
Wohngebäude
Wesentliche Energieträger
GAS
Gültigkeit
04.09.2018 bis 01.09.2028
Effizienzklasse
F
Endenergieverbrauch
193,36 kWh/(m²·a) - Warmwasser enthalten
Weitere Energiedaten
Energieträger
Gas
Heizungsart
Zentralheizung
Details
Objektbeschreibung
Diese gemütliche 3- Raumwohnung liegt im 2. Obergeschoss des ruhigen Mehrfamilienhauses.
Die Wohnräume sind mit Designbelag ausgestattet.
Das in den 1930er Jahren erbaute und 1998 modernisierte 4 Parteienhaus verfügt über eine Gaszentralheizung.
Ausstattung
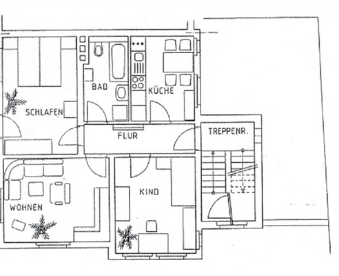
Aufteilung der Wohnung
- Wohnzimmer
- Schlafzimmer
- Kinderzimmer
- Bad
- Küche
Ausstattung der Wohnung
- innen liegendes Badezimmer vollständig gefliest
- Badewanne & Dusche vorhanden
- weiße sprossen Fenster aus Kunststoff
- Designbelag in Wohn-, Schlaf und Kinderzimmer sowie im Flur...
Preisinformation
Nettokaltmiete: 455,00 EUR
Weitere Informationen
Stichworte
Anzahl der Schlafzimmer: 3, Anzahl der Badezimmer: 1, Anzahl der Wohn-Schlafzimmer: 3, 4 Etagen, Wohnungsnr.: 3, modernisiert: 1998
Anbieter der Immobilie
Online-ID: 2m5c557
Referenznummer: 3-136-03
Finde Angebote wie dieses
Hier geht es zu unserem Impressum, den Allgemeinen Geschäftsbedingungen, den Hinweisen zum Datenschutz und nutzungsbasierter Online-Werbung.