

Karen Ulrich Immobilien GmbH
Herr Maximilian Jünke
041 ···
Nr. anzeigenPreise & Kosten
Provision für Käufer
3,59% inkl. MwSt. zu zahlen vom Käufer. Verdient und fällig mit Beurkundung des Kaufvertrages inkl. MwSt.
Lage
Dieses charmante Reihenhaus befindet sich in einer der begehrtesten Lagen von Seevetal, einer idyllischen Gemeinde im Süden von Hamburg. Die zentrale Wohngegend besticht durch ihre ruhigen, familienfreundlichen Straßen und bietet dennoch eine ausgezeichnete Anbindung an alle wichtigen Einrichtungen des täglichen...
Das Haus
Kategorie
Reihenmittelhaus
Baujahr
1960
Energie & Heizung
Warum sehe ich diese Anzeige? – Du siehst diese Anzeige basierend auf Ihrer Navigation auf unserer Website und den Suchkriterien, die du verwendet hast.
Energieausweistyp
Bedarfsausweis
Gebäudetyp
Wohngebäude
Baujahr laut Energieausweis
1960
Wesentliche Energieträger
GAS
Gültigkeit
bis 30.10.2035
Effizienzklasse
F
Endenergiebedarf
187,20 kWh/(m²·a)
Weitere Energiedaten
Energieträger
Gas
Heizungsart
offener Kamin, Zentralheizung
Details
Objektbeschreibung
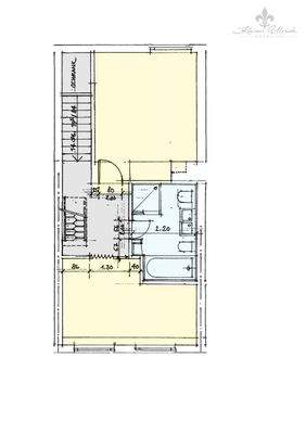
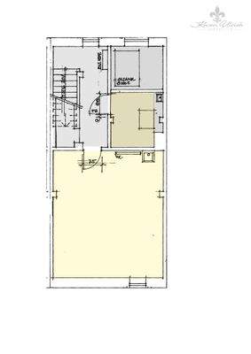
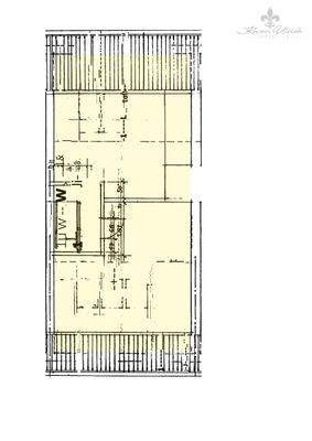
Willkommen zu Ihrem neuen Zuhause in Seevetal, einem charmanten Reihenmittelhaus, das sowohl Komfort als auch Funktionalität bietet. Dieses zum Kauf angebotene Objekt besticht durch seine ansprechende Architektur und die durchdachte Raumaufteilung auf drei Etagen.
Auf einem ca. 256 m² großen Grundstück gelegen, steht...
Ausstattung
- Einbauküche
- diverse Einbauschränke
- Wohnzimmer mit Vollholzparkett und Kaminofen
- Schlafzimmer mit Einbauschrank
- Vollbad + Dusche
- Studio im Dachgeschoss mit großen Dachfensterflächen
- Fenster von 2009
- Vollkeller mit Waschküche und Sauna
- Holzschuppen als Holzlager
-...
Weitere Informationen
Sonstiges
Wir möchten, dass Sie zufrieden sind! Wir sind ein erfahrener Makler und seit 1987 tätig. Wir stehen Ihnen für alle Fragen rund um die Immobilie zur Verfügung. Sie möchten eine Bewertung ihrer Immobilie- wir kommen selbstverständlich unverbindlich zu Ihnen. Der Makler-Vertrag mit uns kommt durch schriftliche...
Anbieter der Immobilie
Karen Ulrich Immobilien GmbH
Marquardtsweg 2, 21217 Seevetal

Online-ID: 2m5ce57
Referenznummer: 1164
Finde Angebote wie dieses
Hier geht es zu unserem Impressum, den Allgemeinen Geschäftsbedingungen, den Hinweisen zum Datenschutz und nutzungsbasierter Online-Werbung.