

ANOMIS® Immobilien
Frau Simona Anomis
+39 ···
Nr. anzeigenPreise & Kosten
Provision für Käufer
6% zzgl. Mwst.
Lage
Es liegt in mitten der Toskana, gehört zum historischen mittelalterlichen Ort Massa Marittima und der Gemeinde Grosseto. Zum Einkaufen, Apotheke, Artbesuche, Shoppingmeile, Restaurants, Cafes benötigt man mit dem auto 5-8 min. Zur nächsten Tankstelle 3 min. Am thyrrenischen Meer in Follonica ist man schnell in 16 min zum...
Land-/Forstwirtschaft
Kategorie
Jagdrevier
Baujahr
2010
Bezug
sofort
Energie & Heizung
Warum sehe ich diese Anzeige? – Du siehst diese Anzeige basierend auf Ihrer Navigation auf unserer Website und den Suchkriterien, die du verwendet hast.
Weitere Energiedaten
Energieträger
Elektro, Holz, Solar
Heizungsart
Etagenheizung, Luft-/Wasser-Wärmepumpe
Details
Objektbeschreibung
Entdecken Sie Ihr nächstes Zuhause im Herzen der Toskana - ein Anwesen, das nicht nur durch seine Schönheit, sondern auch durch seine Vielseitigkeit beeindruckt. Wohnen und Agrarwirtschaft betreiben in EINEM. Auf einem majestätischen Plateau, umgeben von der malerischen Landschaft Massa Marittimas, bietet dieses 67 Hektar...
Ausstattung
Luxus Anwesen mit Villa Energieklasse A
Das Grundstück hat 67 Hektar mit einem hervorragenden Rundumblick und Fernblick, direkt auf die Stadt Massa Marittima und deren toskanische Landschaft. Thronend auf einem majesthetischen Plateau des toskanischen Hügel Landes.
Hier gibt es sogar eine Riserva für die Jagd.
Des...
Preisinformation
30 Stellplätze
Weitere Informationen
Sonstiges
Besichtigungen führen wir in deutscher und italienischer Sprache durch.
Auch Unterkünfte aller Preisklassen in der Nähe können wir für Sie organisieren.
Stichworte
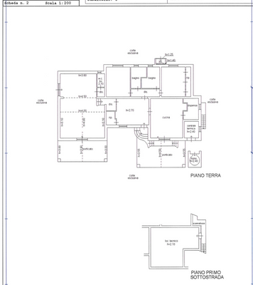
Gesamtfläche: 670.000,00 m², 2 Etagen
Anbieter der Immobilie

Online-ID: 2m5d75n
Referenznummer: 5134 (1/136)
Finde Angebote wie dieses
Hier geht es zu unserem Impressum, den Allgemeinen Geschäftsbedingungen, den Hinweisen zum Datenschutz und nutzungsbasierter Online-Werbung.