
Jürgen Ruff Immobilien
Frau Beate Ruff
017 ···
Nr. anzeigenPreise & Kosten
Kaution
800 €
Warum sehe ich diese Anzeige? – Du siehst diese Anzeige basierend auf Ihrer Navigation auf unserer Website und den Suchkriterien, die du verwendet hast.
Lage
In einer ruhigen Gartenlage gelegen, bietet Dobel mit seinen 2.300 Einwohnern ein harmonisches Lebensumfeld, das sowohl für Familien als auch für Berufstätige attraktiv ist. Die Nähe zu Einkaufsmöglichkeiten, Bank, Bäcker und Metzger ermöglicht es, den täglichen Bedarf bequem zu decken, ohne weit fahren zu müssen. Auch die...
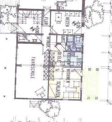
Die Wohnung
Kategorie
Terrassenwohnung
Wohnungslage
Erdgeschoss
Bezug
sofort
Derzeitige Nutzung
frei
Wohnanlage
Energie & Heizung
Warum sehe ich diese Anzeige? – Du siehst diese Anzeige basierend auf Ihrer Navigation auf unserer Website und den Suchkriterien, die du verwendet hast.
Energieausweistyp
Bedarfsausweis
Gebäudetyp
Wohngebäude
Baujahr laut Energieausweis
1984
Wesentliche Energieträger
Gas
Gültigkeit
11.11.2019 bis 10.11.2029
Effizienzklasse
C
Endenergiebedarf
99,30 kWh/(m²·a)
Weitere Energiedaten
Energieträger
Gas
Heizungsart
Zentralheizung
Details
Objektbeschreibung
Eleganz und Komfort vereinen sich in dieser charmanten Wohnung im Erdgeschoss, die mit einer einladenden Terrasse ausgestattet ist. Von hier aus genießen Sie einen schönen Blick auf den gepflegten Garten, der sowohl Ruhe als auch einen grünen Rückzugsort bietet. Die Wohnung wurde erst 2022 modernisiert und vereint somit...
Weitere Informationen
- Waschmaschine
- Spülmaschine, Herd ,..
vorhanden
Anbieter der Immobilie
Jürgen Ruff Immobilien
Wildbader Straße 4, 75335 Dobel
Online-ID: 2m5dn5j
Referenznummer: 21 W
Finde Angebote wie dieses
Hier geht es zu unserem Impressum, den Allgemeinen Geschäftsbedingungen, den Hinweisen zum Datenschutz und nutzungsbasierter Online-Werbung.