

DAS IMMOBILIENHAUS Fuhrmann
Herr Alexander Radeck
036 ···
Nr. anzeigenPreise & Kosten
Provision für Käufer
3,57 % inkl. 19 % MwSt.
Lage
Suhl, Lautenbertg
Das Haus
Kategorie
Einfamilienhaus
Bezug
sofort
Derzeitige Nutzung
frei
Energie & Heizung
Warum sehe ich diese Anzeige? – Du siehst diese Anzeige basierend auf Ihrer Navigation auf unserer Website und den Suchkriterien, die du verwendet hast.
Energieausweistyp
Verbrauchsausweis
Gebäudetyp
Wohngebäude
Baujahr laut Energieausweis
1920
Wesentliche Energieträger
Gas
Gültigkeit
18.12.2025 bis 17.12.2035
Endenergieverbrauch
121,50 kWh/(m²·a)
Weitere Energiedaten
Energieträger
Gas
Heizungsart
Zentralheizung
Details
Objektbeschreibung
Art: Einfamilienhaus, freis tehend, ein- bis zweigeschossig, teilunterkellert, ausgebautes Dachgeschoss
Baujahr: ca.1920, Aufstockung ca.1970
Anbau: Garage, 1997
Konstruktionsart: Fachwerk
Fundament: Streifenfundament, Kellerfußboden entfernt und durch Beton ersetzt
Kellerwände...
Ausstattung
Wohn- und Nutzfläche:
Wohnfläche: ca. 104,95 m²
Nutzfläche: ca. 36,64 m²
Aufteilung:
Kellergeschoss: Flur, Raum
Erdgeschoss:
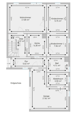
Flur, Bad, Diele, Küche, Kinderzimmer 1, Kinderzimmer 2, Wohnzimmer, Garage, Abstellraum
Dachgeschoss:
Diele, Bad, Küche mit Abstellzimmer...
Weitere Informationen
Garage:
Bodenplatte = Beton
Wände = Beton Hohlblocksteine
Schleppdach engobierten Tonziegeln (1997)
Holzbalkendecke
elektrisches Schwingtor
Außenanlagen:
vorwiegend Wiesenfläche
befestigte Terrasse = Pflasterstein
Stützmauer straßenseitig = Naturbruchstein
Stützmauer auf dem Grundstück =...
Anbieter der Immobilie

Online-ID: 2m5f35s
Referenznummer: 641
Finde Angebote wie dieses
Hier geht es zu unserem Impressum, den Allgemeinen Geschäftsbedingungen, den Hinweisen zum Datenschutz und nutzungsbasierter Online-Werbung.