
Immo-Connect GmbH
Frank Walbröl
022 ···
Nr. anzeigenPreise & Kosten
Kaution
9.000,00
Provision für Mieter
3.57 Monatsmieten inkl. MwSt.
Warum sehe ich diese Anzeige? – Du siehst diese Anzeige basierend auf Ihrer Navigation auf unserer Website und den Suchkriterien, die du verwendet hast.
Lage
Königswinter-Oberpleis, gelegen im Siebengebirge, ist infrastrukturell hervorragend ausgeprägt. Einkaufsmöglichkeiten des täglichen Bedarfs sind in direkter Nähe vorhanden, Banken und Apotheken ebenso vertreten wie Ärztehäuser, Schulen und Kindergarten. Die Autobahnanschlussstelle Siebengebirge der Autobahn A3 ist in wenigen...
Die Industriefläche
Kategorie
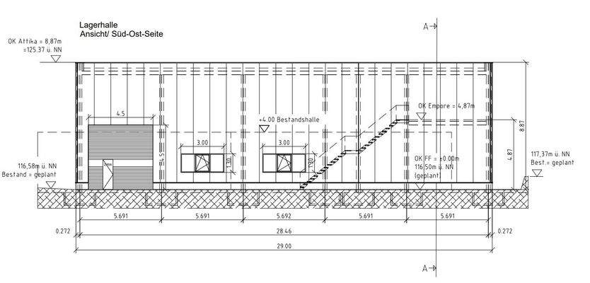
Lagerhalle
Baujahr
2022
Bezug
Nach Vereinbarung
Details
Objektbeschreibung
Zur Vermietung steht eine moderne, neuwertige Gewerbehalle in top Lage in Königswinter-Oberpleis. Die Halle überzeugt durch eine großzügige Ausstattung und vielfältige Nutzungsmöglichkeiten. Ideal für Lagerung, Logistik oder sonstige gewerbliche Zwecke.
Objektmerkmale:
2-geschossig mit einer Deckenhöhe von 9 m...
Ausstattung
Betonboden
Deckenhöhe 9m
2-geschossige Bauweise
Viel Tageslichteinfall
Starkstrom vorhanden
LED-Beleuchtung
Elektrisches Sektionaltor der Marke Hörmann, 4m x 4m
Die gesamte Elektrik ist neu und mit separaten Ablesegeräten ausgestattet
Das gesamte Areal ist eingefriedet und über 2 Zugangstore...
Weitere Informationen
Sonstiges
Wir sind bemüht, alle Angaben vollständig und richtig zu übermitteln. Da wir uns jedoch teilweise bei Fakten und Daten auf die Information der Eigentümer stützen müssen, übernehmen wir hierfür keine Gewähr. Das Exposé dient als Vorinformation und die Prüfung der Angaben/Objektunterlagen obliegt dem...
Anbieter der Immobilie
Immo-Connect GmbH
Frankfurter Straße 73a, 53773 Hennef
Online-ID: 2m5fp5a
Referenznummer: IW-NB-639
Finde Angebote wie dieses
Hier geht es zu unserem Impressum, den Allgemeinen Geschäftsbedingungen, den Hinweisen zum Datenschutz und nutzungsbasierter Online-Werbung.