
Nudelmann & Friends Immobilien GmbH
Nicole Rahlke
030 ···
Nr. anzeigenPreise & Kosten
Kaution
Drei Bruttowarmmieten
Provision für Mieter
3,57 Nettokaltmieten inklusive 19?% MwSt.
Warum sehe ich diese Anzeige? – Du siehst diese Anzeige basierend auf Ihrer Navigation auf unserer Website und den Suchkriterien, die du verwendet hast.
Lage
Die Gewerbefläche liegt im hippen und beliebten "Simon-Dach-Kiez", gelegen zwischen der Warschauerstraße und Ostkreuz. Der Boxhagenerplatz ist in direkter Nachbarschaft, sodass Sie sich genau im Geschehen befinden. Alles, was das Leben so spannend macht, ist fußläufig erreichbar: viele Bars, Restaurants, Geschäfte...
Gastronomie/Hotel
Kategorie
Restaurant
Bezug
sofort
Details
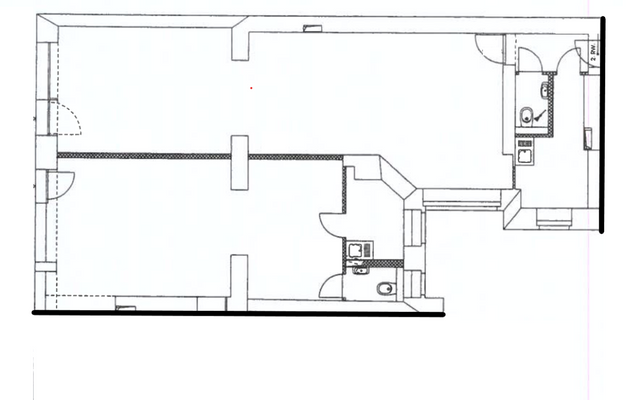
Objektbeschreibung
Erkunden Sie diese großzügige Gewerbefläche im beliebten "Simon-Dach-Kiez", strategisch gelegen zwischen der Warschauerstraße und dem Ostkreuz.
Die Gewerbefläche umfasst etwa 135 m² und bietet somit ausreichend Platz für Ihre Ideen und verschiedenartigsten Aktivitäten. Durch die großzügigen Räume, die nach Ihren...
Ausstattung
Shop im Shop Modell möglich
- Großzügige Fläche
- Räume veränderbar
- Großzügige Schaufenster
- Fliesenboden
- Zwei getrennte WC
- Abstellraum
Weitere Informationen
Stichworte
Gesamtfläche: 135,99 m², Bundesland: Berlin
Anbieter der Immobilie
Nudelmann & Friends Immobilien GmbH
Kurfürstendamm 133, 10711 Berlin
Online-ID: 2m5gh5w
Referenznummer: 10245BOX28 - EG - GASTRO
Finde Angebote wie dieses
Hier geht es zu unserem Impressum, den Allgemeinen Geschäftsbedingungen, den Hinweisen zum Datenschutz und nutzungsbasierter Online-Werbung.