

Heinke Immobilien GmbH
Herr Joachim A. Heinke
075 ···
Nr. anzeigenPreise & Kosten
Provision für Käufer
2,5 % zzgl. MwSt.
Lage
In schöner Wohnlage, wenige Meter vom Zentrum von Immenstaad a. Bodensee befindet sich das im Jahr 19960 erbaute Mehrfamilienhaus. Die Gemeinde Immenstaad verfügt über eine hervorragende Infrastruktur. Einkaufsmöglichkeiten des täglichen Bedarfs, Ärzte- und Apotheken, Banken, befinden sich im unmittelbaren Umfeld.
Der sehr...
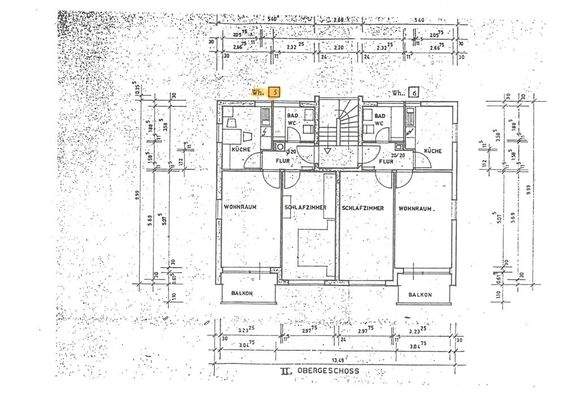
Die Wohnung
Wohnungslage
2. Geschoss
Bezug
01.05.2026
Wohnanlage
Energie & Heizung
Warum sehe ich diese Anzeige? – Du siehst diese Anzeige basierend auf Ihrer Navigation auf unserer Website und den Suchkriterien, die du verwendet hast.
Energieausweistyp
Verbrauchsausweis
Gebäudetyp
Wohngebäude
Baujahr laut Energieausweis
2001
Wesentliche Energieträger
OEL
Gültigkeit
bis 07.04.2029
Effizienzklasse
D
Endenergieverbrauch
110,00 kWh/(m²·a)
Weitere Energiedaten
Energieträger
Öl
Heizungsart
Zentralheizung
Details
Objektbeschreibung
Die Wohnung befindet sich im 2. Obergeschoss eines Mehrfamilienhauses.
Auf insgesamt ca. 50 m² Wohnfläche verteilen sich der Eingangsbereich mit schönem Flur, Wohn- und Esszimmer mit Zugang zum Balkon, Einbauküche mit Elektrogeräte, Schlafzimmer mit Zugang zum Balkon, sowie ein kleines Tageslichtbad.
Im...
Ausstattung
* Kunststoff-Fenster 2-fach
* Vinylbodenbeläge
* Keller
* Einbauküche
* Balkon
* Einzelgarage
* Vollwärmeschutz
Preisinformation
1 Garagenstellplatz, Kaufpreis: 15.000,00 EUR
Weitere Informationen
Sonstiges
Die Wohnung wird aktuell noch vom Verkäufer bewohnt.
Stichworte
Nutzfläche: 3,00 m², Anzahl der Schlafzimmer: 1, Anzahl der Badezimmer: 1, Anzahl Balkone: 1, Distanz vom Zentrum: 0.10
Dokumente
Anbieter der Immobilie

Heinke Immobilien GmbH

Online-ID: 2m5gk59
Referenznummer: 801
Finde Angebote wie dieses
Hier geht es zu unserem Impressum, den Allgemeinen Geschäftsbedingungen, den Hinweisen zum Datenschutz und nutzungsbasierter Online-Werbung.