
Immobilien Goldener Grund
Frau Anja Roth
017 ···
Nr. anzeigenPreise & Kosten
Provision für Käufer
3,57 % inklusive gesetzlicher Mehrwertsteuer
Lage
Das Haus befindet sich an einer wenig befahrenen Straße in Oberweyer, einem Ortsteil der Gemeinde Hadamar mit ca. 860 Einwohnern. Vorort befindet sich ein Kindergarten. Schulen, Tankstellen sowie Einkaufsmöglichkeiten für den täglichen Bedarf (z.B. REWE, Aldi und Bäckereien) befinden sich in Hadamar und Niederhadamar. Die...
Das Haus
Kategorie
Einfamilienhaus
Baujahr
1963
Energie & Heizung
Warum sehe ich diese Anzeige? – Du siehst diese Anzeige basierend auf Ihrer Navigation auf unserer Website und den Suchkriterien, die du verwendet hast.
Energieausweistyp
Bedarfsausweis
Gebäudetyp
Wohngebäude
Baujahr laut Energieausweis
1963
Wesentliche Energieträger
Erdgas
Gültigkeit
01.10.2023 bis 30.09.2033
Effizienzklasse
G
Endenergiebedarf
228,30 kWh/(m²·a)
Details
Objektbeschreibung
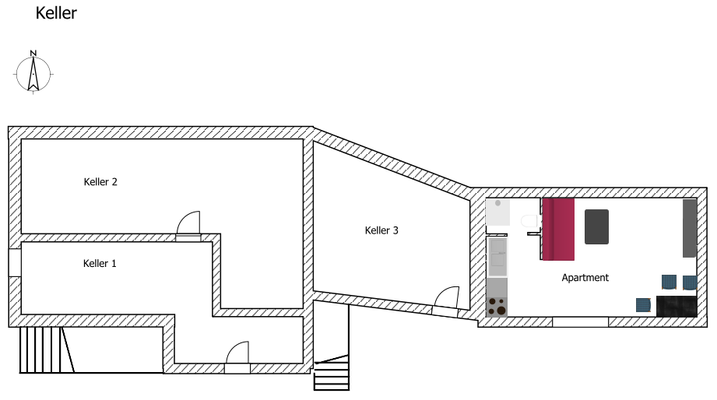
Das um ca. 1963 erbaute Haus präsentiert sich mit einer großzügigen Gesamtwohnfläche von rund 189 m² und bietet ideale Voraussetzungen für die Nutzung als komfortables Einfamilienhaus. Aktuell wird die Immobilie als Zweifamilienhaus genutzt und ist vermietet. Mit nur wenigen Handgriffen, der Wiederherstellung der...
Weitere Informationen
Sonstiges
Sie möchten selbst eine Immobilie verkaufen? Wir ermitteln den Wert seriös und marktgerecht und optimieren die Verkaufschancen ihrer Immobilie, indem wir einen speziell auf ihr Objekt abgestimmten Vermarktungsplan erstellen. Wir begleiten Sie auf dem Weg zum erfolgreichen Verkauf und stehen Ihnen auch noch nach...
Anbieter der Immobilie
Immobilien Goldener Grund
Mozartstraße 2, 65594 Runkel

Online-ID: 2m5p85l
Finde Angebote wie dieses
Hier geht es zu unserem Impressum, den Allgemeinen Geschäftsbedingungen, den Hinweisen zum Datenschutz und nutzungsbasierter Online-Werbung.