

KHC Bauträger GmbH
Frau Janet Schrepel
037 ···
Nr. anzeigenPreise & Kosten
Provision für Käufer
provisionsfrei
Lage
Das Grundstück befindet sich in einem neuen Baugebiet in Lichtenstein. Es sind auch noch Grundstücke in anderen Größen verfügbar.
Das Haus
Kategorie
Einfamilienhaus
Baujahr
2026
Energie & Heizung
Warum sehe ich diese Anzeige? – Du siehst diese Anzeige basierend auf Ihrer Navigation auf unserer Website und den Suchkriterien, die du verwendet hast.
Energieausweistyp
Bedarfsausweis
Gebäudetyp
Wohngebäude
Baujahr laut Energieausweis
2026
Gültigkeit
seit 04.01.2016
Effizienzklasse
A
Weitere Energiedaten
Heizungsart
Fußbodenheizung, Zentralheizung
Details
Objektbeschreibung
Willkommen im persönlichen Wohntraum! Das Familienhaus Melia verspricht offenes Wohnen mit viel Platz für jedes Familienmitglied.
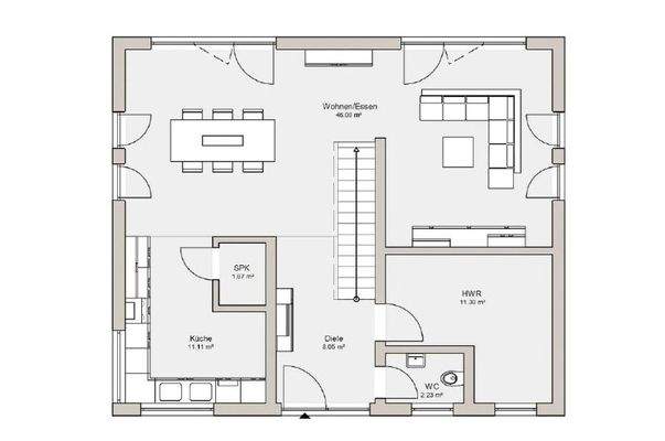
Das Erdgeschoss gestaltet sich sehr einladend, denn die Diele geht direkt in den großzügigen Wohnbereich über. Auf über 55 m² sind hier eine Couchecke, ein Essplatz und eine Küche perfekt...
Ausstattung
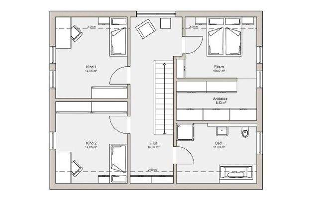
4 Zimmer, offene Küche, Diele, Gäste-WC, Speisekammer, Bad, Flur, Ankleide, Hauswirtschaftsraum
Das gezeigte Traumhaus im Überblick:
+ Schlüsselfertiges Massivhaus im Sinne der Ausstattungsbeschreibung "Easy"
+ Inklusive Bodenplatte
Beste Markenausstattung in jedem Kern-Haus:
+...
Weitere Informationen
Sonstiges
Kern-Haus
Kern-Haus baut individuelle und massive Architektenhäuser zu einem attraktiven Preis-Leistungs-Verhältnis - und das bereits mit einer Erfahrung seit 1980.
Maximale Sicherheit bei Kern-Haus:
+ 10 Jahre Gewährleistung auf die wesentlichen Bauleistungen
+ Bis zu 24 Monate...
Anbieter der Immobilie
KHC Bauträger GmbH
Albert Einstein Str. 4, 09212 Limbach-Oberfrohna

Online-ID: 2m5pd5y
Referenznummer: KH 21_08
Finde Angebote wie dieses
Hier geht es zu unserem Impressum, den Allgemeinen Geschäftsbedingungen, den Hinweisen zum Datenschutz und nutzungsbasierter Online-Werbung.