
ISH Immobilien OHG
Mareike Martienß
041 ···
Nr. anzeigenPreise & Kosten
Kaution
2.670,00
Warum sehe ich diese Anzeige? – Du siehst diese Anzeige basierend auf Ihrer Navigation auf unserer Website und den Suchkriterien, die du verwendet hast.
Lage
Steinkirchen gehört zur Samtgemeinde Lühe und liegt zwischen Stade und Buxtehude mitten im Alten Land. Der Fähranleger Lühe ist nur 3 km entfernt. In Buxtehude sind Sie in 20 Minuten, nach Finkenwerder benötigen Sie knapp 30 Minuten und die Hansestadt Stade ist ca. 17 Minuten mit dem Auto entfernt. Den Feierabend können Sie...
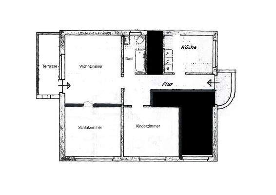
Die Wohnung
Wohnungslage
Erdgeschoss
Bezug
sofort
Wohnanlage
Energie & Heizung
Warum sehe ich diese Anzeige? – Du siehst diese Anzeige basierend auf Ihrer Navigation auf unserer Website und den Suchkriterien, die du verwendet hast.
Energieausweistyp
Bedarfsausweis
Gebäudetyp
Wohngebäude
Baujahr laut Energieausweis
1964
Wesentliche Energieträger
Gas
Gültigkeit
07.02.2024 bis 06.02.2034
Effizienzklasse
F
Endenergiebedarf
197,90 kWh/(m²·a)
Weitere Energiedaten
Energieträger
Gas
Details
Objektbeschreibung
Willkommen in Ihrem neuen Zuhause! Diese lichtdurchflutete 3-Zimmer-Wohnung mit einer großzügigen Wohnfläche von 91,5 m² bietet Ihnen den perfekten Rückzugsort. In der ebenerdigen Wohnung erleben Sie eine harmonische Kombination aus modernem Komfort und zeitloser Eleganz. Der Wohnbereich lädt zum Verweilen ein und bietet...
Ausstattung
- Einbauküche neu aus 2023
- Duschbad neu aus 2023
- Innentüren neu aus 2023
- Fenster 3-fach verglast, neu aus 2023
- Gasheizung neu aus 2023
- Abstellmöglichkeit innerhalb der Wohnung
- Terrasse
- Gartenbereich
- Stellplatz für Fahrräder
- Kfz-Stellplatz (je zzgl. EUR 30,00)
- 2 Jahre...
Preisinformation
1 Stellplatz, Miete: 30,00 EUR
Weitere Informationen
Sonstiges
Hinweis: Wir weisen höflich darauf hin, dass die hier gemachten Angaben ausschließlich auf den uns vom Eigentümer übermittelten Unterlagen und Daten basieren. Für die Richtigkeit und Vollständigkeit können wir keine Haftung übernehmen. Das Angebot ist freibleibend. Forderungen und Irrtümer...
Anbieter der Immobilie
Online-ID: 2m5qz5j
Referenznummer: 4906
Finde Angebote wie dieses
Hier geht es zu unserem Impressum, den Allgemeinen Geschäftsbedingungen, den Hinweisen zum Datenschutz und nutzungsbasierter Online-Werbung.