
ohne-makler.net - Immobilien selbst vermarkten
Privat vom Eigentümer
Kontaktiere den Anbieter schriftlich, es ist keine Telefonnummer hinterlegt.
Preise & Kosten
nicht in Warmmiete enthalten
Kaution
3.900,00
Provision für Mieter
provisionsfrei
Warum sehe ich diese Anzeige? – Du siehst diese Anzeige basierend auf Ihrer Navigation auf unserer Website und den Suchkriterien, die du verwendet hast.
Lage
Die Fläche befindet sich im gefragten Stadtteil Bremen-Hastedt. Die Verkehrsanbindung ist ausgezeichnet: In unmittelbarer Nähe verlaufen die Straßenbahnlinien 2 und 10 sowie die Buslinie 25. Der modernisierte Bahnhof Sebaldsbrück liegt rund 200 Meter entfernt und sorgt für eine schnelle und bequeme Erreichbarkeit aus allen...
Büro-/Praxisfläche
Kategorie
Bürofläche
Baujahr
1965
Bezug
nach Absprache
Geschoss
1. Geschoss
Energie & Heizung
Warum sehe ich diese Anzeige? – Du siehst diese Anzeige basierend auf Ihrer Navigation auf unserer Website und den Suchkriterien, die du verwendet hast.
Wärme
Strom
Energieausweistyp
Bedarfsausweis
Gebäudetyp
Nicht-Wohngebäude
Endenergiebedarf (Wärme)
165,00 kWh/(m²·a)
Endenergiebedarf (Strom)
4,00 kWh/(m²·a)
Weitere Energiedaten
Energieträger
Gas
Heizungsart
Zentralheizung
Details
Objektbeschreibung
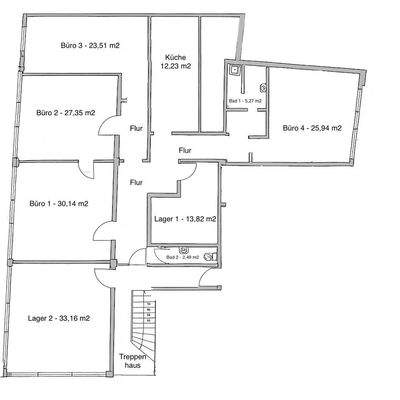
Die hier angebotene, flexibel nutzbare Gewerbefläche umfasst 202 m² und eignet sich ideal als Büro- oder Schulungsfläche. Die Einheit setzt sich aus vier gut geschnittenen Büroräumen, mehreren Lagerräumen, einem Raum mit Küchenanschlüssen, einem Bad mit Dusche sowie einem separaten Kunden- bzw. Gäste-WC zusammen. Die...
Ausstattung
Gäste-WC, Teppichboden
Bemerkungen:
Die angebotenen Räume sind auf zeitgemäßem technischen Standard ausgestattet und bieten ideale Voraussetzungen für eine vielseitige Nutzung als Büro- oder Schulungsfläche.
- Gesamtfläche ca. 202 m²
- 4 Büroräume
- 1-2 Lagerräume. Bei Bedarf zusätzliche Kellerräume...
Preisinformation
4 Stellplätze
Nettokaltmiete: 1.300,00 EUR
Weitere Informationen
Sonstiges
Heizungsart: Zentralheizung
Energieträger: Gas
Makleranfragen nicht erwünscht. Nach § 7 UWG sind unaufgeforderte Kontaktaufnahmen durch Makler ohne ausdrückliche Einwilligung des Empfängers verboten!
ohne-makler (OM) ist weder Anbieter noch Vermittler der Immobilie. OM betreibt eine Plattform...
Anbieter der Immobilie
ohne-makler.net - Immobilien selbst vermarkten
Humboldtstr. 25 A, 21509 Glinde
Privat vom Eigentümer
Dein Ansprechpartner
Kontaktiere den Anbieter schriftlich, es ist keine Telefonnummer hinterlegt.
Online-ID: 2m5tj5n
Referenznummer: 403957
Finde Angebote wie dieses
Hier geht es zu unserem Impressum, den Allgemeinen Geschäftsbedingungen, den Hinweisen zum Datenschutz und nutzungsbasierter Online-Werbung.