
DER IMMO TIP Vermittlung von Immobilien GmbH
Herr Paul Mannheim
035 ···
Nr. anzeigenPreise & Kosten
Provision für Käufer
3,57 %
Lage
Die Immobilie befindet sich in Wilkau-Haßlau, innerhalb eine gepflegten und ruhig gelegenen Wohngegend in grüner Umgebung.
Die bundesstraße 93 sowie die Autobahn A 72 erreicht man innerhalb weniger Autominuten.
Wilkau-Haßlau ist eine Kleinstadt im Landkreis Zwickau in Sachsen. Sie hat etwa 10.000 Einwohner. Die...
Wohnanlage
Energie & Heizung
Warum sehe ich diese Anzeige? – Du siehst diese Anzeige basierend auf Ihrer Navigation auf unserer Website und den Suchkriterien, die du verwendet hast.
Energieausweistyp
Verbrauchsausweis
Gebäudetyp
Wohngebäude
Baujahr laut Energieausweis
1995
Gültigkeit
bis 18.01.2028
Endenergieverbrauch
154,00 kWh/(m²·a)
Details
Objektbeschreibung
Kurzbeschreibung
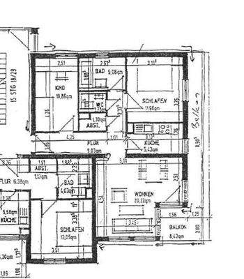
3 Zimmerwohnung mit großen Balkon & Stellplatz zum Kauf | vermietet | nahe Zwickau
Objekt
Zum Verkauf steht eine attraktive Dreizimmerwohnung im Erdgeschoss eines gepflegten Mehrfamilienhauses. Die Wohnung verfügt über eine Wohnfläche von ca. 73 m² und besticht insbesondere durch einen...
Ausstattung
* großer Balkon mit Blick ins Grüne
* Tageslichtbad mit Wanne
* separates WC
* mit Einbaküche
* mit PKW Stellplatz
Preisinformation
1 Stellplatz
Soll-Mieteinnahmen pro Jahr: 5.520,00 EUR
Ist-Mieteinnahmen pro Jahr: 5.520,00 EUR
Weitere Informationen
Sonstiges
Baujahr: 1995
Baujahr: 1996
Befeuerung/Energieträger: Öl
Energieausweistyp: Verbrauchsausweis
Energiekennwert: 154 kWh/(m²*a)
Hinweis: Fehlende Angaben zum Energieausweis gemäß Energiesparverordnung 2014 ( EnEV ) begründen sich durch Nichtangabepflicht bei Denkmalschutzobjekten, Grundstücken...
Anbieter der Immobilie
DER IMMO TIP Vermittlung von Immobilien GmbH
Semperstr. 1, 01069 Dresden
Online-ID: 2m5tw5n
Referenznummer: 67056
Finde Angebote wie dieses
Hier geht es zu unserem Impressum, den Allgemeinen Geschäftsbedingungen, den Hinweisen zum Datenschutz und nutzungsbasierter Online-Werbung.