
UM Immobilien
Frau Ursula Müller
+49 ···
Nr. anzeigenPreise & Kosten
Kaution
2 Netto-Monatsmieten
Provision für Mieter
2 Kaltmieten zzgl. MwSt.
2 Kaltmieten zzgl. MwSt.
Warum sehe ich diese Anzeige? – Du siehst diese Anzeige basierend auf Ihrer Navigation auf unserer Website und den Suchkriterien, die du verwendet hast.
Lage
Die Gewerbeeinheit befindet sich in einem belebten Wohn- und Gewerbegebiet im Norden von Traunreut
Das Objekt
Baujahr
1974
Geschosse
3 Geschosse
Energie & Heizung
Warum sehe ich diese Anzeige? – Du siehst diese Anzeige basierend auf Ihrer Navigation auf unserer Website und den Suchkriterien, die du verwendet hast.
Wärme
Energieausweistyp
Verbrauchsausweis
Gebäudetyp
Nicht-Wohngebäude
Baujahr laut Energieausweis
1974
Wesentliche Energieträger
Fernwärme
Gültigkeit
06.06.2023 bis 05.06.2033
Endenergieverbrauch (Wärme)
98,50 kWh/(m²·a)
Weitere Energiedaten
Energieträger
Fernwärme
Details
Objektbeschreibung
Diese Gewerbeeinheit, erbaut 1974, erstreckt sich über Keller-, Erdgeschoss- und Obergeschoss, verbunden über Treppen.
Das Erdgeschoss hat 165 qm und besteht aus einem großen und 2 weiteren Räumen.
Das Obergeschoss ist 164 qm groß. Hier befinden sich 4 Räume ausgelegt mit Laminat und 2 WC.
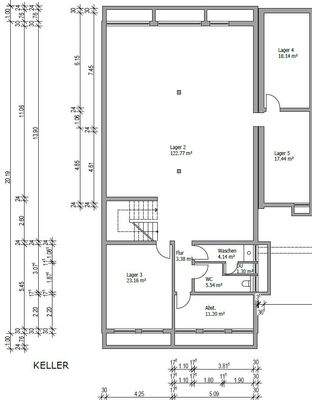
Die Kellerfläche...
Ausstattung
- 3 WC
- im Keller Schwerlastregale
- Klimaanlage
- Starkstrom
Preisinformation
3 Stellplätze, Miete je: 25,00 EUR
Weitere Informationen
Sonstiges
Haftung:
Die von uns gemachten Informationen zu Objekt, Plänen und Unterlagen beruhen auf Angaben des Verkäufers bzw. der Verkäuferin. Für die Richtigkeit und Vollständigkeit der Angaben kann keine Gewähr bzw. Haftung übernommen werden. Ein Zwischenverkauf, Änderungen und Irrtümer sind vorbehalten.
GwG...
Anbieter der Immobilie
Online-ID: 2m5w75v
Referenznummer: 9862#4xmIak
Finde Angebote wie dieses
Hier geht es zu unserem Impressum, den Allgemeinen Geschäftsbedingungen, den Hinweisen zum Datenschutz und nutzungsbasierter Online-Werbung.