
Agas Immobilien GmbH
Frau Ulrike Mach
004 ···
Nr. anzeigenPreise & Kosten
Kaution
3 Netto-Kaltmieten
Provision für Mieter
provisionsfrei
Warum sehe ich diese Anzeige? – Du siehst diese Anzeige basierend auf Ihrer Navigation auf unserer Website und den Suchkriterien, die du verwendet hast.
Lage
Diese hochwertige Immobilie befindet sich in einer dynamischen und gut angebundenen Lage im östlichen Teil von Berlin, nahe dem Tierpark. Die Nachbarschaft besticht durch ihre aktive Infrastruktur durch, zum Beispiel, das umgebene Wohngebiet sowie öffentliche Institutionen und bietet gleichzeitig eine ruhige...
Büro-/Praxisfläche
Kategorie
Bürofläche
Baujahr
2020
Bezug
sofort
Energie & Heizung
Warum sehe ich diese Anzeige? – Du siehst diese Anzeige basierend auf Ihrer Navigation auf unserer Website und den Suchkriterien, die du verwendet hast.
Wärme
Strom
Energieausweistyp
Bedarfsausweis
Gebäudetyp
Nicht-Wohngebäude
Baujahr laut Energieausweis
2020
Wesentliche Energieträger
KWK_FOSSIL
Gültigkeit
bis 19.07.2030
Endenergiebedarf (Wärme)
67,10 kWh/(m²·a)
Endenergiebedarf (Strom)
17,20 kWh/(m²·a)
Details
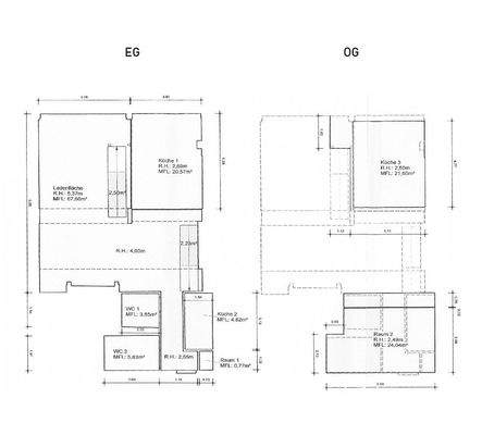
Objektbeschreibung
Fühlen Sie sich willkommen in Ihrer neuen Gewerbefläche in diesem Neubau aus dem Jahr 2020, gelegen im Berliner Stadtteil Friedrichsfelde. Diese vielseitige Gewerbeimmobilie, mit einer Gesamtfläche von ca. 149,7 m², bietet Ihnen und Ihrem Team ein modernes sowie vielseitiges Arbeitsumfeld auf höchstem...
Ausstattung
Diese außergewöhnliche Immobilie besticht durch ihre offene und moderne Gestaltung. Die helle Architektur schafft ein einladendes Ambiente, in dem sich unzählige Gestaltungsmöglichkeiten eröffnen. Die beiden großzügigen Büroflächen im Obergeschoss mit je ca. 21/24 m² sowie die zwei separaten Eingänge im unteren Geschoss, mit...
Preisinformation
Nettokaltmiete: 2.235,00 EUR
Weitere Informationen
Sonstiges
Wir haben Ihr Interesse geweckt?
Hier auf dieser Seite finden Sie jetzt die Möglichkeit der Kontaktaufnahme. Für weitere Informationen (Termine, Anschrift u.ä.) benötigen wir Ihre Angaben: Name, Vorname, Anschrift, E-Mail, Telefonnummer (fest/mobil).
Unvollständige Anfragen können wir nicht...
Anbieter der Immobilie
Online-ID: 2m5x25h
Referenznummer: GC200
Finde Angebote wie dieses
Hier geht es zu unserem Impressum, den Allgemeinen Geschäftsbedingungen, den Hinweisen zum Datenschutz und nutzungsbasierter Online-Werbung.