
ernst h. eggers Hausmakler e.K.
Herr Thore Schild
+49 ···
Nr. anzeigenPreise & Kosten
Kaution
2.700,00
Warum sehe ich diese Anzeige? – Du siehst diese Anzeige basierend auf Ihrer Navigation auf unserer Website und den Suchkriterien, die du verwendet hast.
Lage
Die Lage des Objekts Am Ehlersberg 26 im Ortsteil Ehlersberg der Gemeinde Tangstedt bietet eine günstige Anbindung an verschiedene Orte und Einrichtungen. Hier sind einige Informationen zur Umgebung:
- Entfernung zum Flughafen Hamburg:
Der Flughafen Hamburg ist in etwa einer halben Stunde mit dem Auto zu...
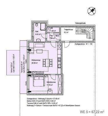
Die Wohnung
Wohnungslage
2. Geschoss (Dachgeschoss)
Bezug
sofort / nach Absprache
Wohnanlage
Energie & Heizung
Warum sehe ich diese Anzeige? – Du siehst diese Anzeige basierend auf Ihrer Navigation auf unserer Website und den Suchkriterien, die du verwendet hast.
Energieausweistyp
Bedarfsausweis
Gebäudetyp
Wohngebäude
Baujahr laut Energieausweis
2022
Wesentliche Energieträger
Gas
Gültigkeit
29.03.2023 bis 28.03.2033
Effizienzklasse
A+
Endenergiebedarf
26,70 kWh/(m²·a)
Weitere Energiedaten
Energieträger
Gas
Heizungsart
Fußbodenheizung, Zentralheizung
Details
Objektbeschreibung
Diese Wohnung befindet sich in einem Mehrfamilienhaus mit insgesamt 9 Wohneinheiten und einem Restaurant. Sie verfügt über moderne Wohnräume und eine ansprechende Ausstattung in den Innenbereichen, sodass keine Wünsche offen bleiben. Die Wohnung verfügt über ein Balkon.
Die Wand- und Bodenfliesen sind modern gestaltet...
Ausstattung
Merkmale der Wohnung:
1. Wand u. Bodenfliesen
Moderne Wand- und Bodenfliesen, die dem Wohnraum ein ansprechendes und zeitgemäßes Erscheinungsbild verleihen.
2. Einbauküche
Eine helle und bereits verbaute Einbauküche.
3. Wärmeversorgung
Durch den Einsatz einer Gaszentralheizung in der...
Preisinformation
Nettokaltmiete: 900,00 EUR
Weitere Informationen
Stichworte
Stellplatz vorhanden, Anzahl der Schlafzimmer: 1, Anzahl der Badezimmer: 1, Anzahl Balkone: 1, Bundesland: Schleswig-Holstein
Dokumente
Anbieter der Immobilie
Online-ID: 2m5yd5q
Referenznummer: 0315
Finde Angebote wie dieses
Hier geht es zu unserem Impressum, den Allgemeinen Geschäftsbedingungen, den Hinweisen zum Datenschutz und nutzungsbasierter Online-Werbung.