

gut Immobilien GmbH
071 ···
Nr. anzeigenPreise & Kosten
Provision für Käufer
provisionsfrei
Lage
Die DHH wird in einer ruhigen und sonnigen Lage von Weissach gebaut.
Kindergarten, Grundschule, Gemeinschaftsschule, Bibliothek, Supermarkt, Bäckerei und eine Postfiliale befinden sich direkt vor Ort. Das Gymnasium ist bequem im Nachbarort zu erreichen.
Die sechs öffentlichen Spielplätze in Weissach lassen die...
Das Haus
Kategorie
Doppelhaushälfte
Baujahr
2026
Energie & Heizung
Warum sehe ich diese Anzeige? – Du siehst diese Anzeige basierend auf Ihrer Navigation auf unserer Website und den Suchkriterien, die du verwendet hast.
Energieausweistyp
Bedarfsausweis
Gebäudetyp
Wohngebäude
Baujahr laut Energieausweis
2026
Wesentliche Energieträger
LUFTWP
Gültigkeit
15.05.2025 bis 14.05.2035
Effizienzklasse
A+
Endenergiebedarf
15,80 kWh/(m²·a)
Weitere Energiedaten
Haustyp
Massivhaus
Heizungsart
Fußbodenheizung, Luft-/Wasser-Wärmepumpe
Details
Objektbeschreibung
Diese DHH wird in einer familienfreundlichen Lage von Weissach gebaut.
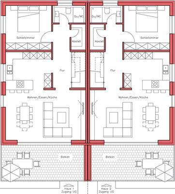
Mit 6 Zimmern, verteilt auf 162 m² Wohnfläche, bietet Ihnen diese moderne DHH viel Platz für Ihre ganze Familie sowie das Homeoffice.
Der sonnige Garten mit der Terrasse und der große Balkon sind nach Süden ausgerichtet. Hier können Sie die...
Ausstattung
Das Haus ist bezugsfertig und sehr gut ausgestattet. Alle Bodenbeläge, Malerarbeiten sowie elektrischen Rollläden sind im Preis enthalten. Es wird in sehr guter Massivbauweise (Stein auf Stein) mit 3-fach Verglasung, Fußbodenheizung, Luft-Wasser-Wärmepumpe (GEG 2024) und Photovoltaik-Anlage erstellt und weist den...
Preisinformation
1 Stellplatz
1 Garagenstellplatz
Weitere Informationen
Sonstiges
Vereinbaren Sie gleich einen Termin mit uns am Grundstück, um mehr zu erfahren!
Ihre Wünsche können in der Aufteilung noch berücksichtigt werden.
"Eine Gelegenheit für die junge Familie, großzügig und modern in ruhiger Rand- und Sonnenlage zu wohnen"
Stichworte
Anzahl der Schlafzimmer: 5...
Anbieter der Immobilie
Online-ID: 2m5z358
Referenznummer: 13306998
Finde Angebote wie dieses
Hier geht es zu unserem Impressum, den Allgemeinen Geschäftsbedingungen, den Hinweisen zum Datenschutz und nutzungsbasierter Online-Werbung.