

Immobilienmarkt Plauen Inh. P. Grimm
Herr Pierre Grimm
+49 ···
Nr. anzeigenPreise & Kosten
Verhandlungsbasis
Provision für Käufer
Käuferprovision in Höhe von 17.671,50 Euro inkl. 19% MwSt.
Das Haus
Kategorie
Villa
Geschosse
3 Geschosse
Baujahr
1935
Bezug
nach Erwerb
Derzeitige Nutzung
frei
Energie & Heizung
Warum sehe ich diese Anzeige? – Du siehst diese Anzeige basierend auf Ihrer Navigation auf unserer Website und den Suchkriterien, die du verwendet hast.
Energieausweistyp
Verbrauchsausweis
Gebäudetyp
Wohngebäude
Baujahr laut Energieausweis
1935
Wesentliche Energieträger
Gas
Gültigkeit
19.11.2024 bis 18.11.2034
Effizienzklasse
H
Endenergieverbrauch
274,50 kWh/(m²·a)
Weitere Energiedaten
Haustyp
Massivhaus
Energieträger
Gas
Heizungsart
Zentralheizung
Details
Preisinformation
1 Garagenstellplatz
Weitere Informationen
---Provisionshinw...
Käuferprovision in Höhe von 17.671,50 Euro inkl. 19% MwSt.
---mehr unter---
https://www.immobilienmarkt-plauen.de/details/K138
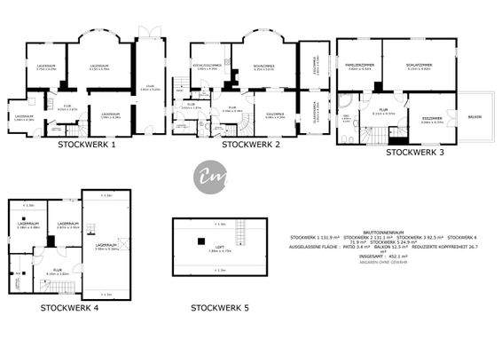
mehr BILDER, Grundrisse und alle weiteren Angaben zum Objekt finden Sie auf unserer Homepage
Objektbeschreibung:
Diese charmante Stadtvilla aus dem Jahre...
Anbieter der Immobilie
Immobilienmarkt Plauen Inh. P. Grimm
Johanniskirchplatz 4, 08523 Plauen

Online-ID: 2m5zv55
Referenznummer: K138
Finde Angebote wie dieses
Hier geht es zu unserem Impressum, den Allgemeinen Geschäftsbedingungen, den Hinweisen zum Datenschutz und nutzungsbasierter Online-Werbung.