
**Immo Royal GmbH**
Frau Erika Pacurar
+49 ···
Nr. anzeigenPreise & Kosten
Provision für Käufer
4,76% vom Kaufpreis (inkl. MwSt.)
Lage
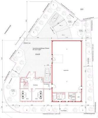
Die Liegenschaft befindet sich in einem Gewerbegebiet in Röttenbach mit schneller Anbindung an das überregionale Verkehrsnetz. Die ruhige, aber gut erreichbare Lage bietet ideale Bedingungen für Gewerbetreibende.
Metzger, Bäcker, Friseur sowie Kindergarten sind im Ortskern direkt erreichbar. Zudem liegt der schöne...
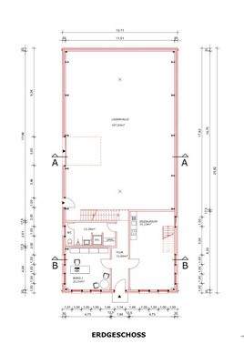
Die Industriefläche
Kategorie
Lagerhalle
Baujahr
2024
Bezug
sofort
Derzeitige Nutzung
frei
Geschosse
1 Geschoss
Energie & Heizung
Warum sehe ich diese Anzeige? – Du siehst diese Anzeige basierend auf Ihrer Navigation auf unserer Website und den Suchkriterien, die du verwendet hast.
Weitere Energiedaten
Energieträger
Elektro
Heizungsart
Fußbodenheizung, Luft-/Wasser-Wärmepumpe, Zentralheizung
Details
Objektbeschreibung
Bei dem zum Verkauf stehenden Objekt handelt es sich um eine im Jahr 2024 neu errichtete Gewerbeeinheit. Die Immobilie besteht aus einer großzügigen Lagerhalle mit 196,89 m² Fläche sowie einer angeschlossenen Büroeinheit mit 70,40 m² Hauptnutzfläche, verteilt auf zwei Geschosse. Zusätzlich stehen Neben-, Verkehrs- und...
Ausstattung
+ Dreifachverglaste Kunststofffenster
+ Elektrische Rollos
+ Fliegengitter
+ Fußbodenheizung
+ Bodengleiche Duschen
+ Separater Zugang zu Büro- und Lagerbereichen
+ Zwei separate Einheiten für flexible Nutzung
+ Sozialräume mit Dusche, Umkleide und WC
+ Moderne...
Preisinformation
5 Stellplätze
Weitere Informationen
Sonstiges
Sehr geehrter Interessent,
bitte haben Sie Verständnis dafür, dass nur vollständig ausgefüllte Anfragen mit korrekter Postanschrift bearbeitet werden können. Bitte wenden Sie sich per E-Mail über das Kontaktformular an uns. Wir bitten Sie, bei der Exposé-Anforderung Ihre vollständige Anschrift mit...
Anbieter der Immobilie
Online-ID: 2m5zx5k
Referenznummer: 320411
Finde Angebote wie dieses
Hier geht es zu unserem Impressum, den Allgemeinen Geschäftsbedingungen, den Hinweisen zum Datenschutz und nutzungsbasierter Online-Werbung.