
DAHLER & COMPANY Elbe GmbH & Co. KG
Kontaktiere den Anbieter schriftlich, es ist keine Telefonnummer hinterlegt.
Preise & Kosten
Provision für Käufer
3,57 % inkl. der gesetzl. MwSt., bezogen auf den Kaufpreis
Lage
Das Anwesen befindet sich in familienfreundlicher und naturnaher Lage in Hamburg-Rissen, einem westlichen Elbvorort. Eingebettet zwischen dem Forst Klövensteen, dem Wildpark und der Elbuferlandschaft genießen Sie hier Ruhe und Natur pur – ganz ohne Flugverkehrsbelastung.
Das Rissener Zentrum mit seinen vielfältigen...
Das Haus
Kategorie
Einfamilienhaus
Baujahr
1974
Bezug
sofort
Derzeitige Nutzung
frei
Energie & Heizung
Warum sehe ich diese Anzeige? – Du siehst diese Anzeige basierend auf Ihrer Navigation auf unserer Website und den Suchkriterien, die du verwendet hast.
Energieausweistyp
Bedarfsausweis
Gebäudetyp
Wohngebäude
Baujahr laut Energieausweis
1974
Wesentliche Energieträger
Öl
Effizienzklasse
D
Endenergiebedarf
113,60 kWh/(m²·a)
Weitere Energiedaten
Energieträger
Öl
Heizungsart
offener Kamin, Zentralheizung
Details
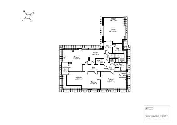
Objektbeschreibung
Am Ufer der Wedeler Au vereint dieses außergewöhnliche Anwesen Ruhe, Naturverbundenheit und architektonische Flexibilität. Das Haus von 1974 wurde 2004 saniert, 2020 modernisiert und erhielt 2025 ein neues Dach mit Photovoltaikanlage.
Die Immobilie bietet auf drei Etagen vielfältige Nutzungsmöglichkeiten – als...
Ausstattung
Das Anwesen überzeugt durch eine hochwertige Ausstattung, die sowohl Komfort als auch Sicherheit gewährleistet. Im Jahr 2025 erhält das Haus ein neues Dach mit integrierter Photovoltaikanlage, sodass künftig Strom direkt vom eigenen Dach genutzt werden kann. Bereits 2020 wurde das Dachgeschoss hochwertig ausgebaut und bietet...
Anbieter der Immobilie
DAHLER & COMPANY Elbe GmbH & Co. KG
Blankeneser Bahnhofstraße 7, 22587 Hamburg
Kontaktiere den Anbieter schriftlich, es ist keine Telefonnummer hinterlegt.
Online-ID: 2m62x57
Finde Angebote wie dieses
Hier geht es zu unserem Impressum, den Allgemeinen Geschäftsbedingungen, den Hinweisen zum Datenschutz und nutzungsbasierter Online-Werbung.