

SIP Immobilien und Hausverwaltung GmbH
Herr Alexander Wiecker
044 ···
Nr. anzeigenPreise & Kosten
Kaution
2 Monatsmieten
Warum sehe ich diese Anzeige? – Du siehst diese Anzeige basierend auf Ihrer Navigation auf unserer Website und den Suchkriterien, die du verwendet hast.
Lage
Das Objekt ist zentral im Ortskern von Wittmund gelegen. Der erstklassige Standort ermöglicht es, wesentliche Anlaufstellen fußläufig zu erreichen.
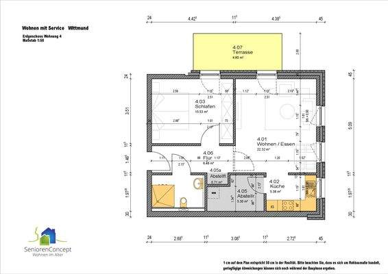
Die Wohnung
Wohnungslage
Erdgeschoss
Bezug
01.02.2026
Derzeitige Nutzung
frei
Wohnanlage
Energie & Heizung
Warum sehe ich diese Anzeige? – Du siehst diese Anzeige basierend auf Ihrer Navigation auf unserer Website und den Suchkriterien, die du verwendet hast.
Energieausweistyp
Bedarfsausweis
Gebäudetyp
Wohngebäude
Baujahr laut Energieausweis
2018
Wesentliche Energieträger
Erdgas-E, Strommix
Gültigkeit
04.03.2019 bis 03.03.2029
Effizienzklasse
A+
Endenergiebedarf
21,70 kWh/(m²·a)
Weitere Energiedaten
Energieträger
Gas
Haustyp
KfW 40
Heizungsart
Zentralheizung
Details
Objektbeschreibung
Objektbeschreibung
Vermietet wird eine seniorengerechte und barrierefrei Wohnung im Erdgeschoss des Hauses, welches im Jahr 2018 fertiggestellt wurde.
Das Wohnen mit Service umfasst insgesamt 16 Wohnungen und verfügt über einen großzügigen Gemeinschaftsraum. Sie wohnen selbständig innerhalb Ihrer eigenen vier Wände...
Weitere Informationen
Besichtigungstermine
Besichtigungen sind nach Absprache möglich. Die Wohnung ist inzwischen frei!
Stichworte
Zustand: neuwertig, gepflegt
Sonstiges/Wohnen: seniorengerechtes Wohnen
Sonstiges: Analog
Anbieter der Immobilie
SIP Immobilien und Hausverwaltung GmbH
Markt 22, 26122 Oldenburg

Online-ID: 2m6335j
Finde Angebote wie dieses
Hier geht es zu unserem Impressum, den Allgemeinen Geschäftsbedingungen, den Hinweisen zum Datenschutz und nutzungsbasierter Online-Werbung.