
GARANT Immobilien AG
Büro Calw / Freudenstadt
074 ···
Nr. anzeigenPreise & Kosten
Provision für Käufer
3,57 % (inkl. MwSt.) inkl. MwSt.
Die Maklercourtage für den Käufer beträgt 3 % aus dem Kaufpreis zuzüglich der gesetzlichen MwSt., somit gesamt 3,57 %.
Lage
Alpirsbach mit über 6.200 Einwohnern liegt im oberen Kinzigtal, ca. 20 km südlich von Freudenstadt. Bekannt ist die Stadt vor allem durch die ortsansässige Brauerei, die Klosterkirche, das ehemalige Benediktinerkloster, die dominierenden Fachwerkhäuser. In unmittelbarer Nähe befindet sich die einzige Trinkwassertalsperre...
Land-/Forstwirtschaft
Baujahr
1964
Bezug
sofort/vermietet
Energie & Heizung
Warum sehe ich diese Anzeige? – Du siehst diese Anzeige basierend auf Ihrer Navigation auf unserer Website und den Suchkriterien, die du verwendet hast.
Wärme
Strom
Energieausweistyp
Verbrauchsausweis
Gebäudetyp
Nicht-Wohngebäude
Baujahr laut Energieausweis
1964
Wesentliche Energieträger
Öl
Gültigkeit
seit 09.07.2021
Endenergieverbrauch (Wärme)
68,00 kWh/(m²·a)
Endenergieverbrauch (Strom)
16,90 kWh/(m²·a)
Weitere Energiedaten
Energieträger
Öl
Heizungsart
Zentralheizung
Details
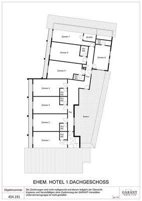
Objektbeschreibung
Ein ehemaliges Hotel in Alpirsbach mit über 20 Gästezimmer
sowie Abstell- und Lagerräume stehen zum Verkauf.
Das 1964 massiv gebaute Objekt in guter Lage mit schöner Aussicht
wartet auf einen Investor. Zu diesem Objekt gehören 9 Stellplätze direkt am Haus,
sowie ca. 15 Parkplätze in direkter Nähe.
Ein...
Ausstattung
* ehemaliges Hotel
* 24 Parkplätze
* Zweifamilienhaus
* Grundstück
Weitere Informationen
Sonstiges
Energieverbrauchsausweis
Energiekennwert: Strom 16,90 kWh/(qm*a), Wärme 68,00 kWh/(qm*a)
Heizung: Zentralheizung mit Öl
Baujahr laut Energieausweis: 1964
Für Kapitalanleger gut geeignet !
Stichworte
Gesamtfläche: 1.941,00 m², Anzahl Balkone: 1, 4 Etagen
Anbieter der Immobilie
Online-ID: 2m64f5p
Referenznummer: 454.191
Finde Angebote wie dieses
Hier geht es zu unserem Impressum, den Allgemeinen Geschäftsbedingungen, den Hinweisen zum Datenschutz und nutzungsbasierter Online-Werbung.