
Bundesanstalt für Immobilienaufgaben
other Wohnungsvermietung Erfurt
Kontaktiere den Anbieter schriftlich, es ist keine Telefonnummer hinterlegt.
Preise & Kosten
nicht in Warmmiete enthalten
Kaution
1053,90
Warum sehe ich diese Anzeige? – Du siehst diese Anzeige basierend auf Ihrer Navigation auf unserer Website und den Suchkriterien, die du verwendet hast.
Lage
Meiningen, das Kultur-, Justiz- und Finanzzentrum Südthüringens liegt an der Werra und ist umgeben von bewaldeten Hügeln. Die Stadt verfügt über eine gut ausgebaute Infrastruktur durch verschiedene Bundesstraßen und Anschluss an die A71. Für Kulturinteressierte bietet das Meininger Theater, das Aushängeschild der...
Die Wohnung
Wohnungslage
1. Geschoss
Bezug
sofort
Wohnanlage
Energie & Heizung
Warum sehe ich diese Anzeige? – Du siehst diese Anzeige basierend auf Ihrer Navigation auf unserer Website und den Suchkriterien, die du verwendet hast.
Energieausweistyp
Verbrauchsausweis
Gebäudetyp
Wohngebäude
Effizienzklasse
D
Weitere Energiedaten
Energieträger
Gas
Heizungsart
Zentralheizung
Details
Objektbeschreibung
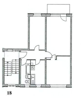
Drei Zimmer, Küche, Bad und ein Balkon mit einer tollen Weitsicht bieten viel Platz für Ihre Wohnideen.
Die Küche und das Badezimmer verfügen über ein Fenster und das Badezimmer wurde mit Fliesen in einem zeitlosen Design ausgestattet. Das Highlight dieser Wohnung ist das geräumige Wohnzimmer mit direktem Zugang zum...
Ausstattung
Bad/WC/Badewanne: gefliester Boden, Fenster
Küche: mit Fenster,
Sprechanlage mit Türöffner,
einbruchshemmende Wohnungs- und Haustüren,
Kellerabstellraum
Weitere Informationen
Stichworte
Anzahl der Badezimmer: 1, Anzahl Balkone: 1, 4 Etagen
Dokumente
Anbieter der Immobilie
Bundesanstalt für Immobilienaufgaben
Ellerstraße 56, 53119 Bonn
other Wohnungsvermietung Erfurt
Dein Ansprechpartner
Kontaktiere den Anbieter schriftlich, es ist keine Telefonnummer hinterlegt.
Online-ID: 2m65x5a
Referenznummer: 2254-103902-44
Finde Angebote wie dieses
Hier geht es zu unserem Impressum, den Allgemeinen Geschäftsbedingungen, den Hinweisen zum Datenschutz und nutzungsbasierter Online-Werbung.