
Reisetbauer Immobilien GmbH
Frau Nathalie Kapl
+43 ···
Nr. anzeigenPreise & Kosten
Provision für Käufer
3% des Kaufpreises zzgl. 20% USt.
Die Wohnung
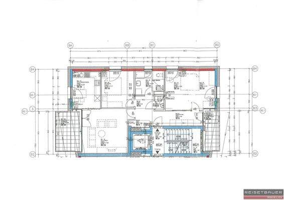
Wohnungslage
2. Geschoss
Bezug
sofort
Wohnanlage
Energie & Heizung
Warum sehe ich diese Anzeige? – Du siehst diese Anzeige basierend auf Ihrer Navigation auf unserer Website und den Suchkriterien, die du verwendet hast.
Heizwärmebedarf (HWB)
87,00 kWh/(m²·a)
Gesamtenergieeffizienz (fGEE)
1,18
Details
Objektbeschreibung
Im Linzer Stadtteil Spallerhof steht diese helle und gut geschnittene 3-Zimmer-Wohnung mit ca. 87 m² Wohnfläche zum Verkauf. Die Wohnung befindet sich im 2. Obergeschoß eines gepflegten Wohnhauses und überzeugt durch ihre durchdachte Raumaufteilung sowie ein lichtdurchflutetes Wohnambiente. Großzügige Fensterflächen lassen...
Weitere Informationen
Stichworte
Anzahl Balkone: 2, Balkon-Terrassen-Fläche: 20,00 m², Bundesland: Oberösterreich
Dokumente
Anbieter der Immobilie
Reisetbauer Immobilien GmbH
Hirschgasse 3, 4020 LINZ
Online-ID: 2m67l5h
Referenznummer: OBGC20251128110556520a54b78f8f8
Finde Angebote wie dieses
Günstige Immobilienfinanzierung einfach online berechnen
Persönliches Angebot berechnenWarum sehe ich diese Werbung? – Du siehst diese Werbung basierend auf Deiner Navigation auf unserer Website und der von Dir verwendeten Suchkriterien.
Diese Werbung wird bezahlt von durchblicker
Werbung melden
Hier geht es zu unserem Impressum, den Allgemeinen Geschäftsbedingungen, den Hinweisen zum Datenschutz und nutzungsbasierter Online-Werbung.