
Schantl ITH Immobilientreuhand GmbH
Herr Samir Agha-Schantl
004 ···
Nr. anzeigenPreise & Kosten
Provision für Käufer
3% des Kaufpreises zzgl. 20% USt.
Lage
Wohnen in einer ruhigen Seitengasse und dennoch mitten im Geschehen mit bester Infrastruktur und Anbindung! TOP-LAGE in 1140 Wien!
Happy Living zwischen Schloss Schönbrunn und Schmelz! Quasi ums Eck befindet sich der Park und das Schloss Schönbrunn, Wiens beliebtes Freizeit und Erholungsgebiet. Hier genießen Sie die Natur...
Die Wohnung
Wohnungslage
1. Geschoss
Bezug
ab sofort
Wohnanlage
Energie & Heizung
Warum sehe ich diese Anzeige? – Du siehst diese Anzeige basierend auf Ihrer Navigation auf unserer Website und den Suchkriterien, die du verwendet hast.
Heizwärmebedarf (HWB)
59,00 kWh/(m²·a)
Gesamtenergieeffizienz (fGEE)
1,04
Weitere Energiedaten
Energieträger
Erdwärme
Heizungsart
Fußbodenheizung, Luft-/Wasser-Wärmepumpe
Details
Objektbeschreibung
Ein Altbau, der verzaubert! Umfangreich und hochwertig sanierte Wohnschönheit mit großem Balkon und effizienter Erdwärme! Viel Privatsphäre + Viel Raum + Viel Grün!
Happy family... Familienparadies mit großem Balkon und Blick ins Grüne sowie jeder Menge Lebensqualität!
Mit viel Liebe zum Detail...
Weitere Informationen
Stichworte
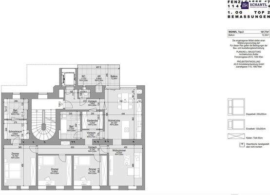
Süd-Balkon/Terrasse, Fahrradraum, Nutzfläche: 147,89 m², Anzahl der Badezimmer: 2, Anzahl der separaten WCs: 3, Anzahl Balkone: 1, Balkon-Terrassen-Fläche: 12,24 m², Kellerfläche: 3,78 m², Bundesland: Wien, 6 Etagen, modernisiert: 2024
Anbieter der Immobilie

Schantl ITH Immobilientreuhand GmbH
Messendorferstraße 71a, 8041 Graz
Online-ID: 2m67p5e
Referenznummer: OBGC20251121225542638aed5363454
Finde Angebote wie dieses
Günstige Immobilienfinanzierung einfach online berechnen
Persönliches Angebot berechnenWarum sehe ich diese Werbung? – Du siehst diese Werbung basierend auf Deiner Navigation auf unserer Website und der von Dir verwendeten Suchkriterien.
Diese Werbung wird bezahlt von durchblicker
Werbung melden
Hier geht es zu unserem Impressum, den Allgemeinen Geschäftsbedingungen, den Hinweisen zum Datenschutz und nutzungsbasierter Online-Werbung.