
Meyerdierks Immobilien
Herr Simon Rode
004 ···
Nr. anzeigenPreise & Kosten
Provision für Käufer
1,785 % inkl. MwSt.
Lage
Die Heiligengeisthöfe befinden sich in ruhiger und geschützter Lage innerhalb der nördlichen Innenstadt von Oldenburg. Trotz der zentralen Position ist das Wohnensemble kaum durch städtischen Verkehr beeinträchtigt und bietet ein angenehm zurückgezogenes Wohnumfeld.
Die nachhaltige Aufwertung des Quartiers wird durch...
Das Haus
Kategorie
Einfamilienhaus
Baujahr
2010
Bezug
nach Absprache
Energie & Heizung
Warum sehe ich diese Anzeige? – Du siehst diese Anzeige basierend auf Ihrer Navigation auf unserer Website und den Suchkriterien, die du verwendet hast.
Energieausweistyp
Verbrauchsausweis
Gebäudetyp
Wohngebäude
Baujahr laut Energieausweis
2009
Wesentliche Energieträger
KWK_FOSSIL
Gültigkeit
bis 18.10.2035
Effizienzklasse
B
Endenergieverbrauch
55,60 kWh/(m²·a)
Weitere Energiedaten
Energieträger
Gas
Details
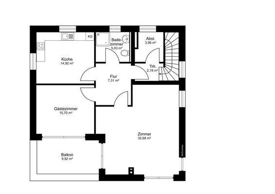
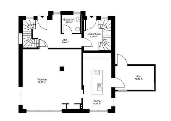
Objektbeschreibung
Zum Verkauf steht ein außergewöhnliches Wohnensemble in den Heiligengeisthöfen 23 und 25 in attraktiver, innenstadtnaher Lage der nördlichen Oldenburger Innenstadt. Das Gebäudeensemble wurde im Jahr 2010 als hochwertiges Neubauquartier errichtet und überzeugt durch moderne Architektur, sehr gute Bauqualität sowie einen...
Ausstattung
Diese Immobilie überzeugt durch eine moderne, hochwertige Ausstattung sowie einen sehr guten energetischen Standard (Energieklasse B), der zeitgemäßes und nachhaltiges Wohnen ermöglicht.
- Effiziente Nahwärmeversorgung über ein zentrales Blockheizkraftwerk (Energiecontracting)
- Fußbodenheizung in sämtlichen...
Preisinformation
1 Stellplatz
1 Tiefgaragenstellplatz
Weitere Informationen
Sonstiges
Der Verkäufer hat uns mit der Vermittlung oder dem Nachweis eines Käufers beauftragt.
Die Provisionsteilung erfolgt hälftig. Auf den Käufer entfällt eine Maklercourtage in Höhe von 1,5 % des Kaufpreises zzgl. USt.. Die Angaben des Angebotes werden uns von den Eigentümern oder Dritten geliefert. Eine...
Anbieter der Immobilie
Meyerdierks Immobilien
Staugraben 6, 26122 Oldenburg
Online-ID: 2m67p5z
Referenznummer: 7130
Finde Angebote wie dieses
Hier geht es zu unserem Impressum, den Allgemeinen Geschäftsbedingungen, den Hinweisen zum Datenschutz und nutzungsbasierter Online-Werbung.