
Hermann Lott Auktionator und Grundstücksmakler KG
Herr Hermann Lott
044 ···
Nr. anzeigenPreise & Kosten
Kaution
1.600,00 2 Monatskaltmieten
Warum sehe ich diese Anzeige? – Du siehst diese Anzeige basierend auf Ihrer Navigation auf unserer Website und den Suchkriterien, die du verwendet hast.
Lage
Objektlage:
- zentrumsnahe und ruhige Wohnlage
- verkehrsberuhigte und gewachsene Wohnsiedlung
- nachbarschaftliche Bebauung mit Ein-/Zweifamilienhäusern
- Spazier- und Radwege in unmittelbarer Nähe
In Augustfehn finden Sie u.a. direkt vor Ort:
- Ärzte, Zahnärzte und Apotheken
- diverse Supermärkte...
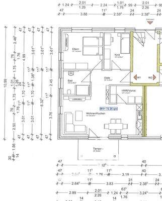
Die Wohnung
Wohnungslage
Erdgeschoss
Bezug
01.02.2026
Wohnanlage
Energie & Heizung
Warum sehe ich diese Anzeige? – Du siehst diese Anzeige basierend auf Ihrer Navigation auf unserer Website und den Suchkriterien, die du verwendet hast.
Energieausweistyp
Bedarfsausweis
Gebäudetyp
Wohngebäude
Baujahr laut Energieausweis
2025
Wesentliche Energieträger
KWK_FOSSIL
Gültigkeit
bis 06.11.2035
Effizienzklasse
B
Endenergiebedarf
65,00 kWh/(m²·a)
Details
Objektbeschreibung
Im neuen Wohngebiet Augustfehn-Hengstforde, ,,Am Reetweg" entsteht dieses schöne Mehrfamilienhaus mit insgesamt 4 Wohneinheiten.
Diese Erdgeschosswohnung (Wohneinheit 1) überzeugt durch modernen Standard und eine durchdachte Raumaufteilung, welche sich wie folgt gestaltet:
Offener Wohn- und Essbereich mit...
Preisinformation
1 Stellplatz
Weitere Informationen
Sonstiges
Zu diesem Objekt liegt ein ausführliches Exposé mit weiteren Detailinformationen vor, das Sie gerne bei uns anfordern können.
Telefonische Erreichbarkeit:
Montag - Freitag: 8.00 Uhr - 12.30 Uhr und 14.00 Uhr bis 17.30 Uhr
Samstag: 9.00 Uhr -12.00 Uhr
Sie möchten Ihre Immobilie...
Anbieter der Immobilie
Hermann Lott Auktionator und Grundstücksmakler KG
Mühlenstraße 15, 26689 Apen - Augustfehn
Online-ID: 2m6ad5d
Referenznummer: 8583
Finde Angebote wie dieses
Hier geht es zu unserem Impressum, den Allgemeinen Geschäftsbedingungen, den Hinweisen zum Datenschutz und nutzungsbasierter Online-Werbung.