

John Witt Immobilien GmbH
Herr John Witt
046 ···
Nr. anzeigenPreise & Kosten
Provision für Käufer
Provisionszahlung des Verkäufers und des Käufers: Jeweils 2,975 % einschl. gesetzlicher MwSt., fällig bei Abschluss Notarvertrag
Lage
Exklusive ruhige Lage im Tor zur Halligwelt, im schönen Ort Breklum, der sich zwischen der Stadt Bredstedt und dem Ort Struckum im mittleren Nordfriesland befindet.
Die heutige Landgemeinde Breklum entstand am 01.12.1934 durch die Zusammenlegung der Dorfschaften Riddorf, Breklum, Borsbüll und des nördlichen Teils des...
Das Haus
Energie & Heizung
Warum sehe ich diese Anzeige? – Du siehst diese Anzeige basierend auf Ihrer Navigation auf unserer Website und den Suchkriterien, die du verwendet hast.
Energieausweistyp
Verbrauchsausweis
Gebäudetyp
Wohngebäude
Baujahr laut Energieausweis
2006
Wesentliche Energieträger
Gas
Gültigkeit
05.03.2022 bis 05.03.2032
Effizienzklasse
D
Endenergieverbrauch
111,07 kWh/(m²·a)
Weitere Energiedaten
Haustyp
Massivhaus
Energieträger
Gas, Holz, Kohle
Heizungsart
Fußbodenheizung, Ofen
Details
Objektbeschreibung
Attraktiv und funktional gestaltetes, geräumiges EFH mit Wintergarten und Carport sowie einem pflegeleichten schönen Garten. Ausgestattet mit einem Gartenhaus und Außenterrasse, zentrumsnah zum Nachbarort Bredstedt gelegen, im lebens- und liebenswerten Dorf Breklum, das mit guter Infrastruktur und vielen Highlights zu...
Ausstattung
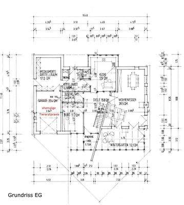
1991 erbautes, großzügig und hell gestaltetes Einfamilienhaus, mit ca. 180 m² Wohnfläche und ca. 56 m² Nutzfläche nebst einer früher gewerblich genutzten Fläche von ca. 60 m², die direkt in das Objekt integriert ist. Siehe Grundriss EG. Das Objekt zeichnet sich durch gute bis sehr gute Ausstattung und einen gemütlichen Wohn-...
Weitere Informationen
Garten
Die Grundstücksgröße beträgt ca. 1644 m². Hinter dem EFH nordöstlich gesehen befindet sich der geräumige Carport mit fernbedienbarem Tor und daran befindlichem Geräteraum mit Platz für Gartengeräte uvm. Der sonnige Garten mit seinen dort angelegten Grünflächen, Büschen und Bäumen und der hinter dem Haus gelegenen...
Anbieter der Immobilie
John Witt Immobilien GmbH
Schlossallee 22, 24960 Glücksburg

Online-ID: 2m6an5y
Finde Angebote wie dieses
Hier geht es zu unserem Impressum, den Allgemeinen Geschäftsbedingungen, den Hinweisen zum Datenschutz und nutzungsbasierter Online-Werbung.