
IMAXX Gesellschaft für Immobilien-Marketing mbH
Matthias Otto
004 ···
Nr. anzeigenPreise & Kosten
Provision für Käufer
3 % zzgl. MwSt.
Lage
Erfurt ist die Landeshauptstadt Thüringens und als größte Stadt das wirtschaftliche und kulturelle Zentrum des Freistaats. Sie ist mit derzeit ca. 214.000 Einwohnern als moderne Handels-, Messe- und Universitätsstadt bekannt und liegt in verkehrsgünstiger Lage an den Autobahnen A4 und A71. Weiterhin besteht durch den Erfurter...
Das Haus
Baujahr
1855
Bezug
nach Vereinbarung
Energie & Heizung
Warum sehe ich diese Anzeige? – Du siehst diese Anzeige basierend auf Ihrer Navigation auf unserer Website und den Suchkriterien, die du verwendet hast.
Energieausweistyp
Bedarfsausweis
Gebäudetyp
Wohngebäude
Baujahr laut Energieausweis
1855
Wesentliche Energieträger
GAS
Gültigkeit
10.11.2025 bis 09.11.2035
Effizienzklasse
G
Endenergiebedarf
205,90 kWh/(m²·a)
Weitere Energiedaten
Energieträger
Gas, Holz
Heizungsart
offener Kamin, Zentralheizung
Details
Objektbeschreibung
Dieses charmante Wohn- und Geschäftshaus mit Anbau sowie massiver Garage vereint historischen Charme mit vielfältigen Nutzungsmöglichkeiten. Das unterkellerte Hauptgebäude wurde ca. 1855 errichtet und verfügt über zwei Vollgeschosse, ein ausgebautes Dachgeschoss sowie einen nicht ausgebauten Spitzboden. Der Anbau stammt aus...
Ausstattung
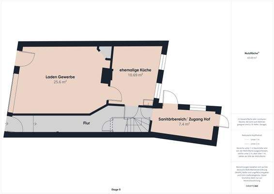
- Gewerbefläche mit Sanitärbereich im EG
- Wohn- und Schlafräume im 1. und 2. OG
- Balkon
- Gas-Zentralheizung
- Kachelofen
- Kunststoff-Fenster mit Isolierverglasung
- PVC-Belag und Fliesen
- 2 Bäder (mit Wanne, Dusche, Waschbecken, WC´s)
- Keller (u.a. Gewölbekeller)
- Garage mit Werkstattgrube...
Preisinformation
1 Stellplatz
1 Garagenstellplatz
Weitere Informationen
Stichworte
Nutzfläche: 43,69 m², Anzahl der Badezimmer: 2, Anzahl der separaten WCs: 2, Anzahl Balkone: 1, Anzahl der Gewerbeeinheiten: 1, 3 Etagen
Anbieter der Immobilie
Online-ID: 2m6cb5x
Referenznummer: 435
Finde Angebote wie dieses
Hier geht es zu unserem Impressum, den Allgemeinen Geschäftsbedingungen, den Hinweisen zum Datenschutz und nutzungsbasierter Online-Werbung.