
WIBAG Immobilienmanagement GmbH & Co. KG
Firma WIBAG Service-Team
030 ···
Nr. anzeigenPreise & Kosten
Provision für Mieter
provisionsfrei
Warum sehe ich diese Anzeige? – Du siehst diese Anzeige basierend auf Ihrer Navigation auf unserer Website und den Suchkriterien, die du verwendet hast.
Büro-/Praxisfläche
Bezug
nach Vereinbarung
Energie & Heizung
Warum sehe ich diese Anzeige? – Du siehst diese Anzeige basierend auf Ihrer Navigation auf unserer Website und den Suchkriterien, die du verwendet hast.
Wärme
Strom
Energieausweistyp
Bedarfsausweis
Gebäudetyp
Nicht-Wohngebäude
Baujahr laut Energieausweis
2023
Wesentliche Energieträger
Fernwärme
Gültigkeit
14.11.2023 bis 13.11.2033
Endenergiebedarf (Wärme)
41,40 kWh/(m²·a)
Endenergiebedarf (Strom)
24,40 kWh/(m²·a)
Weitere Energiedaten
Energieträger
Fernwärme
Heizungsart
Zentralheizung
Details
Objektbeschreibung
PROVISIONSFREI für den Mieter (w/m/d):
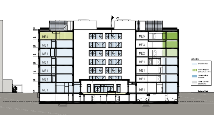
Repräsentative Büro-/Praxisflächen in Berlin-Lichtenberg zum Neubau-Erst-Bezug
verfügbare Mietflächen: 608 m², 627 m², 691 m², 1.177 m² und 2.476 m²
Angaben des Vermietervertreters:
• Gebäudetiefen von ca. 14,50 - 18,00m
• Lichte Raumhöhe in Büro und...
Weitere Informationen
Sonstiges
Der Energieausweis liegt vor und wird im Rahmen einer Objektbegehung vom Vermieter vorgelegt.
Gern senden wir Ihnen unser ausführliches Exposé.
Wir freuen uns auf Ihre Anfrage über das Kontaktformular oder per E-Mail:
Service@WIBAG-Immobilien.de.
WICHTIGER HINWEIS:
Wir bitten um...
Anbieter der Immobilie
WIBAG Immobilienmanagement GmbH & Co. KG
Friedrichstraße 171, 10117 Berlin (Mitte)
Online-ID: 2m6dj5x
Referenznummer: 24101205B11770501
Finde Angebote wie dieses
Hier geht es zu unserem Impressum, den Allgemeinen Geschäftsbedingungen, den Hinweisen zum Datenschutz und nutzungsbasierter Online-Werbung.