

wohnraumwerk Bauträger- & Projektentwicklungs GmbH
Frau Berit Senger
004 ···
Nr. anzeigenPreise & Kosten
Provision für Käufer
Bitte beachte, das Angebot kann bei Vertragsabschluss die Zahlung einer Provision beinhalten. Weitere Informationen erhältst Du vom Anbieter.
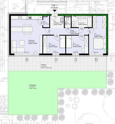
Die Wohnung
Wohnungslage
Erdgeschoss
Wohnanlage
Energie & Heizung
Warum sehe ich diese Anzeige? – Du siehst diese Anzeige basierend auf Ihrer Navigation auf unserer Website und den Suchkriterien, die du verwendet hast.
Heizwärmebedarf (HWB)
32,00 kWh/(m²·a)
Details
Objektbeschreibung
In Alt Eggenberg, in beliebter Stadtlage, verkehrstechnisch ideal angebunden (Strassenbahn vor der Haustüre) aber doch im ruhigen Grünen gelegen, in unmittelbarer Nähe zum wunderschönen Schloss Eggenberg und zum
Naherholungsgebiet Plabutsch, entsteht ein neues Wohnraumwerk-Projekt:
Ein moderner...
Preisinformation
1 Stellplatz
Weitere Informationen
Stichworte
Anzahl der Badezimmer: 1, Anzahl der separaten WCs: 1, Anzahl Terrassen: 1, Balkon-Terrassen-Fläche: 38,29 m², Gartenfläche: 78,46 m², Kellerfläche: 8,83 m², Bundesland: Steiermark, Wohnungsnr.: 01
Dokumente
Anbieter der Immobilie
wohnraumwerk Bauträger- & Projektentwicklungs GmbH
Marschallgasse 17, 8020 GRAZ

Online-ID: 2m6e75r
Referenznummer: OBGC202512170933112421eccdabc9c
Finde Angebote wie dieses
Günstige Immobilienfinanzierung einfach online berechnen
Persönliches Angebot berechnenWarum sehe ich diese Werbung? – Du siehst diese Werbung basierend auf Deiner Navigation auf unserer Website und der von Dir verwendeten Suchkriterien.
Diese Werbung wird bezahlt von durchblicker
Werbung melden
Hier geht es zu unserem Impressum, den Allgemeinen Geschäftsbedingungen, den Hinweisen zum Datenschutz und nutzungsbasierter Online-Werbung.