




Laden zur Miete • provisionsfreiMietkosten auf Anfrage980 m² Verkaufsfläche
Mietkosten auf Anfrage
980 m² Verkaufsfläche
Moderne Gewerbeeineit im Süden von Dorsten - individuell teilbar!
Merkmale
- Bezug: nach Absprache
- Erdgeschoss
- Personenaufzug
- 25 Stellplätze: 25 Außen-Stellplätze
- Barrierefrei
- Bodenbelag: Fliesen
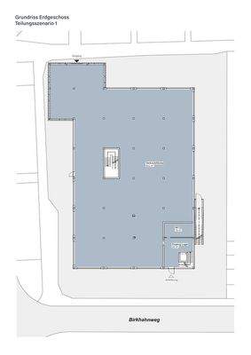
Grundrisse
Grundrisse
1 / 3
Realisiere Dein Projekt
Bausubstanz und Energie
Energieausweis
Endenergieverbrauch (Wärme)
Endenergieverbrauch (Strom)
- Baujahr1981
- HeizungsartZentralheizung
- EnergieträgerGas
Mietkosten
Miete auf Anfrage
Provision für Mieter
provisionsfrei; keine Provision, courtagefrei
Kaution
keine Angabe
Weitere Preisinformationen
25 Stellplätze
Lage

An der Seikenkapelle 23-25, Hardt, Dorsten (46282)
Weitere Informationen
Weitere Services
Lust auf eine Besichtigung?
Eine Frage zur Immobilie?
Über den Anbieter
Humboldtstr. 25 A, 21509 Glinde
Partnerschaft
Angebot von TPI Dorsten GmbHDein Kontakt
Weitere Unterlagen
Online-ID: 2m6fp5k
Referenznummer: 388005
Wie zufrieden bist du mit dieser Seite (nicht mit der Immobilie selbst)?




