

Immobilienprofis.Bayern - Vertriebspartner von Wand-Massivhaus
Herr Elmar Treffler
082 ···
Nr. anzeigenPreise & Kosten
Provision für Käufer
3,57% inkl. MwSt.aus dem notariell beurkundeten Kaufpreis
Lage
Ihr neues zu Hause in Karlsfeld - Idylle vor den Toren Münchens - herrlich wohnen in ruhiger und familienfreundlicher Lage
++ in idyllischer Umgebung im Nord-Westen Münchens ++ in wenigen Fahrminuten an der S-Bahn nach München ++ ausgezeichnete Verkehrsanbindung über die A99 und B304 ++
S-Bahn:
- 10...
Das Haus
Kategorie
Doppelhaushälfte
Baujahr
2026
Bezug
8 Mon. nach Baubeginn
Energie & Heizung
Warum sehe ich diese Anzeige? – Du siehst diese Anzeige basierend auf Ihrer Navigation auf unserer Website und den Suchkriterien, die du verwendet hast.
Energieausweistyp
Bedarfsausweis
Gebäudetyp
Wohngebäude
Baujahr laut Energieausweis
2026
Wesentliche Energieträger
Wärmepumpe
Effizienzklasse
A+
Weitere Energiedaten
Haustyp
Massivhaus
Heizungsart
Fußbodenheizung, Luft-/Wasser-Wärmepumpe
Details
Objektbeschreibung
Immobilienprofis.Bayern - Vertriebspartner von Wand-MassivHaus - DAHEIM STATT NUR ZU HAUSE!
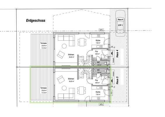
Ihre moderne Doppelhaushälfte - DHH Nr. 3
Das Grundstück befindet sich herrlich ruhig gelegen. Die Grundstücksübersicht finden Sie bei den Bildern.
Unser Konzept:
Erleben Sie modernes Wohnen - ein Zuhause...
Ausstattung
Das Haus wird von Wand-MassivHaus in Massiv-Bauweise erstellt und im Schlüsselfertigen Zustand an Sie übergeben. Lediglich die Bodenbeläge (außer Bad und WC), die Malerarbeiten und die Außenanlagen (die Zuwegung ist bereits im Preis enthalten) müssen Sie in Eigenleistung erstellen oder an uns vergeben.
Genaueres...
Preisinformation
2 Stellplätze
Weitere Informationen
Sonstiges
Der hier angebotene Preis beinhaltet den Kaufpreis für eine ausgebaute Doppelhaushälfte ohne Keller, inkl. Grundstück, Zuwegung, Bauneben- sowie Hausanschlusskosten, zzgl. Erwerbskosten.
+++ Bitte informieren Sie sich vor der Absprache eines Beratungstermins bei Ihrer Bank oder Ihrem Finanzierer bzgl...
Dokumente
Anbieter der Immobilie
Immobilienprofis.Bayern - Vertriebspartner von Wand-Massivhaus
Peter-Dörfler-Str. 30, 86199 Augsburg

Online-ID: 2m6g65a
Referenznummer: 124627442#4LZsy3
Finde Angebote wie dieses
Hier geht es zu unserem Impressum, den Allgemeinen Geschäftsbedingungen, den Hinweisen zum Datenschutz und nutzungsbasierter Online-Werbung.