
ohne-makler.net - Immobilien selbst vermarkten
Privat vom Eigentümer
Kontaktiere den Anbieter schriftlich, es ist keine Telefonnummer hinterlegt.
Preise & Kosten
Provision für Käufer
provisionsfrei
Lage
Der Bungalow befindet sich in Zierow, einer beliebten und ruhigen Wohngemeinde unmittelbar westlich von Wismar. Nur wenige Minuten trennen Sie vom Naturstrand der Ostsee, der zum Spazieren, Radfahren oder Entspannen einlädt.
Zierow verbindet naturnahe Wohnqualität mit stadtnaher Bequemlichkeit - ideal für alle, die...
Das Haus
Kategorie
Bungalow
Baujahr
1990
Bezug
sofort
Energie & Heizung
Warum sehe ich diese Anzeige? – Du siehst diese Anzeige basierend auf Ihrer Navigation auf unserer Website und den Suchkriterien, die du verwendet hast.
Energieausweistyp
Bedarfsausweis
Gebäudetyp
Wohngebäude
Effizienzklasse
C
Endenergiebedarf
97,00 kWh/(m²·a)
Weitere Energiedaten
Energieträger
Elektro
Heizungsart
offener Kamin
Details
Objektbeschreibung
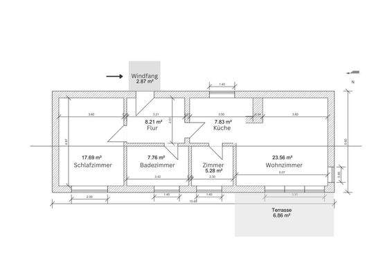
Dieser vollständig modernisierte Bungalow in Zierow bietet auf ca. 81 m² Wohnfläche ein komfortables Zuhause in ruhiger, küstennaher Lage. Das Haus überzeugt durch eine moderne Ausstattung, einen klaren Grundriss und energieeffiziente Haustechnik.
Im Zentrum steht der großzügige Wohn- und Essbereich mit bodentiefen...
Ausstattung
Terrasse, Garten, Duschbad, Einbauküche, Kamin, Barrierefrei, Fliesen
Bemerkungen:
. Komplett modernisiert im Jahr 2025
. Wärmepumpe - energieeffiziente Heiztechnik
. Offene Einbauküche mit großzügigem Wohn-Essbereich
. Kamin für zusätzliche Gemütlichkeit
. Überdachte Terrasse mit neu angelegtem...
Weitere Informationen
Sonstiges
Heizungsart: Sonstiges (s. Text)
Energieträger: Strom
Makleranfragen nicht erwünscht. Nach § 7 UWG sind unaufgeforderte Kontaktaufnahmen durch Makler ohne ausdrückliche Einwilligung des Empfängers verboten!
ohne-makler (OM) ist weder Anbieter noch Vermittler der Immobilie. OM betreibt eine...
Anbieter der Immobilie
ohne-makler.net - Immobilien selbst vermarkten
Humboldtstr. 25 A, 21509 Glinde
Privat vom Eigentümer
Dein Ansprechpartner
Kontaktiere den Anbieter schriftlich, es ist keine Telefonnummer hinterlegt.
Online-ID: 2m6gb5s
Referenznummer: 414514
Finde Angebote wie dieses
Hier geht es zu unserem Impressum, den Allgemeinen Geschäftsbedingungen, den Hinweisen zum Datenschutz und nutzungsbasierter Online-Werbung.