

VIP Immobilien
Frau Amalia Kirikova
049 ···
Nr. anzeigenPreise & Kosten
Kaution
2.200,00
Provision für Mieter
provisionsfrei
Warum sehe ich diese Anzeige? – Du siehst diese Anzeige basierend auf Ihrer Navigation auf unserer Website und den Suchkriterien, die du verwendet hast.
Lage
Das Objekt ist in einem Gewerbegebiet in Aurich Stadt gelegen. Aufgrund der mittigen Lage auf der ostfriesischen Halbinsel, gibt es direkte Verkehrsanbindungen an größere Städte und wirtschaftliche Zentren, wie Emden und Norden. Das macht die Stadt Aurich zu einem attraktiven Ort für Niederlassungen von Unternehmen.
Büro-/Praxisfläche
Baujahr
1997
Energie & Heizung
Warum sehe ich diese Anzeige? – Du siehst diese Anzeige basierend auf Ihrer Navigation auf unserer Website und den Suchkriterien, die du verwendet hast.
Wärme
Strom
Energieausweistyp
Verbrauchsausweis
Gebäudetyp
Nicht-Wohngebäude
Baujahr laut Energieausweis
1997
Wesentliche Energieträger
Erdgas schwer
Gültigkeit
11.02.2021 bis 10.02.2031
Endenergieverbrauch (Wärme)
97,90 kWh/(m²·a) - Warmwasser enthalten
Endenergieverbrauch (Strom)
13,80 kWh/(m²·a) - Warmwasser enthalten
Details
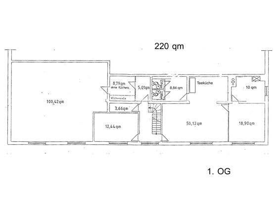
Objektbeschreibung
Die 220 m² Gewerbefläche erstreckt sich über das gesamte erste Obergeschoss, das über eine Treppe erreicht wird.
Im linken Bereich steht Ihnen eine 100 m² große Fläche zur Verfügung, die als Schulungs-, Büro- oder Praxisraum genutzt werden kann. Davor befindet sich ein kleinerer Raum, der als Empfangsraum dienen kann...
Ausstattung
- 220 m² Fläche
- ganzes Geschoss
- Sanitäranlagen sind vorhanden
- zentrale Lage
- Kfz-Stellplätze
Preisinformation
Nettokaltmiete: 1.100,00 EUR
Weitere Informationen
Stichworte
Gesamtfläche: 220,00 m², Bundesland: Niedersachsen
Anbieter der Immobilie

VIP Immobilien
Marktpassage 4, 26603 Aurich

Online-ID: 2m6hf57
Referenznummer: 0369
Finde Angebote wie dieses
Hier geht es zu unserem Impressum, den Allgemeinen Geschäftsbedingungen, den Hinweisen zum Datenschutz und nutzungsbasierter Online-Werbung.